Edytor rodzin jest trybem edycji graficznej umożliwiającym tworzenie i modyfikowanie rodzin w celu umieszczenia ich w projekcie.
Na początku tworzenia rodziny otwiera się szablon do użycia w edytorze. Szablon może zawierać wiele widoków, takich jak rzuty i elewacje. Edytor rodzin ma taki sam wygląd jak środowisko projektu w programie Revit LT, ale zawiera inne narzędzia. Dostępność narzędzi zależy od typu edytowanej rodziny.
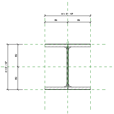
Poniższy rysunek przedstawia rzut rodziny kolumn z szerokim kołnierzem w Edytorze rodzin. Kreskowane na zielono płaszczyzny odniesienia są używane do wiązania geometrii rodziny.
