A faixa da vista é um conjunto de planos horizontais que controlam a visibilidade e a exibição de objetos na vista.
Cada vista da planta possui uma propriedade Faixa da vista , também conhecida como faixa visível. Os planos horizontais que definem a faixa da vista são: Topo, Plano de corte e Base. Os planos de corte superior e inferior representam a parte mais superior e mais inferior da faixa da vista. O plano de corte é um plano que determina em que altura determinados elementos na vista exibida são cortados. Estes três planos definem a faixa principal da faixa de vista.
A Profundidade da vista é o plano fora da faixa principal. Altere a profundidade da vista para mostrar elementos abaixo do plano de recorte inferior. Por padrão, a profundidade da vista coincide com o plano de recorte inferior.
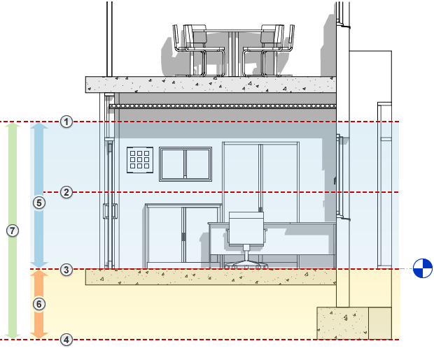
A elevação a seguir mostra a faixa da vista de uma vista de planta: Topo
, Plano de corte
, Base
, Deslocamento (da base)
, Faixa principal
e Profundidade da vista
.
A vista da planta na direita exibe o resultado para esta faixa da vista.
![]() |
![]() |
Em uma vista da planta, o Revit utiliza as regras a seguir para exibir os elementos que estão em intersecção pelo plano de corte:
Exceções para a exibição de elementos com intersecção pelo plano de corte incluem as seguintes:
Os seis pés (ou 2 metros) são medidos do topo da caixa de delimitação até a parte inferior da faixa da vista principal. Por exemplo, se você criar uma parede cujo topo esteja 6 pés acima do plano de recorte inferior, a parede é cortada no plano de corte. Quando o topo da parede é menor do que seis pés, toda a parede é exibida como uma projeção onde ela intersecta o plano de corte. Esse comportamento sempre ocorre quando a propriedade Restrição superior para a parede é especificada como Não conectado.
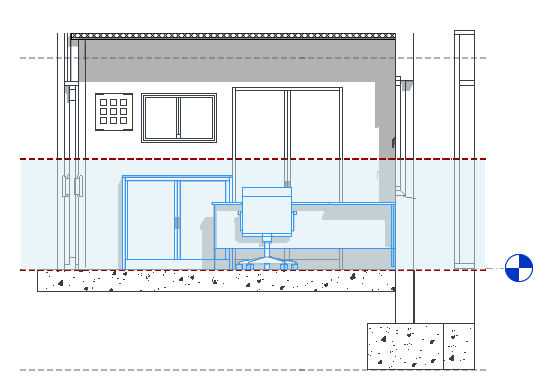
Na elevação a seguir, o azul realçado indica os elementos que efetuam a intersecção com o plano de corte.
A vista da planta na direita exibe o seguinte:
Elementos que são desenhadas utilizando a espessura da linha de corte. (paredes, porta e janela)
Elementos que são desenhados utilizando a espessura da linha de projeção, porque eles são não cortáveis (gabinete).
![]() |
![]() |
Em uma vista da planta, o Revit desenha estes elementos usando a espessura da linha de projeção da categoria de elemento.
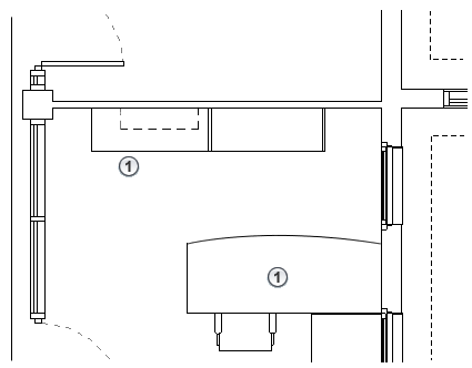
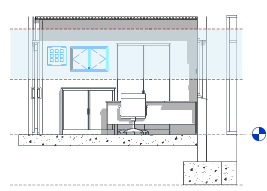
Na elevação a seguir, o azul realçado indica os elementos que estão abaixo do plano de corte e acima do plano de recorte inferior.
A vista da planta na direita exibe o seguinte:
Elementos que são desenhados utilizando a espessura da linha de projeção, já que não têm uma intersecção pelo plano de corte. (gabinete, mesa e cadeira)
![]() |
![]() |
Elementos dentro da profundidade da vista são desenhados com o estilo de linha <Além> independentemente da categoria do elemento.
Exceções: pisos, pisos estruturais, escadas e rampas localizados fora da faixa da vista utilizam uma faixa ajustada que tem 4 pés (aproximadamente 1,22 metros) abaixo da faixa principal. Dentro desta faixa ajustada, os elementos são desenhados utilizando a espessura da linha de projeção para a categoria. Se eles existirem fora desta faixa ajustada, mas dentro da profundidade da vista, estes elementos são desenhados com o estilo de linha<Além>.
Por exemplo, na elevação a seguir, o azul realçado indica os elementos que ocorrem abaixo do plano de recorte inferior e dentro da profundidade da vista.
A vista da planta na direita exibe o seguinte:
Um elemento (fundação) dentro da profundidade da vista que é desenhado usando o estilo de linha <Além>.
Um elemento que é desenhado utilizando a espessura da linha de projeção para sua categoria, porque ele atende as condições de exceção.
![]() |
![]() |
Estes elementos não são exibidos em uma vista de planta, a não ser que suas categorias sejam janelas, gabinetes ou um modelo genérico. Elementos nestas três categorias são desenhados utilizando a espessura da linha de projeção como visualizado de cima.
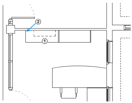
Por exemplo, na elevação a seguir, o azul realçado indica os elementos que ocorrem entre a parte superior da faixa da vista e o plano de corte.
A vista da planta na direita exibe o seguinte:
Componentes de gabinete montado na parede que são desenhados utilizando a espessura da linha de projeção. Neste caso, o estilo de linha tracejada para linhas de projeção é definido na família de componentes de gabinete.
As arandelas da parede (uma categoria de iluminação) que não é desenhada na planta porque sua categoria não é janela, componentes de gabinete ou um modelo genérico.
![]() |
![]() |