
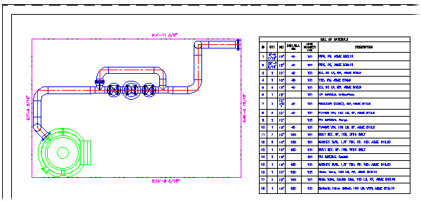
В двумерный чертеж можно вставить таблицу спецификации.

В таблице спецификации перечисляются все элементы, содержащиеся в ортогональном виде.
В настройках таблицы можно задавать группировку и свойства (столбцы). Также можно указать, требуется ли включать перечни разрезов.
Параметры двумерных чертежей, включая новые параметры таблиц спецификации, хранятся в папке Orthos\Styles. Можно предоставить к ним доступ путем копирования папки стиля в другой проект.
Настройка спецификаций в двумерных чертежах аналогична настройке спецификаций в изометрических чертежах (относительно столбцов таблицы и группировки). Как и при работе с изометрической спецификацией, настройку таблицы можно сохранить в основной надписи.
В отличие от спецификаций ISO области рисования и таблиц не поддерживаются.

Администраторы могут настраивать для проекта спецификации по умолчанию.
В разделе "Настройка проекта" можно настроить таблицу спецификации в основной надписи двумерного чертежа. Если разместить шаблон таблицы спецификации (пустую таблицу) в основной надписи, при создании новых двумерных чертежей запрос местоположения или размера выводиться не будет.

В AutoCAD Plant 3D 2015 и более поздних версиях можно создавать таблицы ведомости материалов для ортогональных видов. В таблице ведомости материалов двумерного чертежа указываются трубопроводы и опоры труб.