При размещении на листе вида можно скрыть части вида, чтобы сфокусироваться на одной области.
Используйте один или несколько из следующих методов.
- Область подрезки: область подрезки используется для выделения на виде определенной области модели здания.
- Области маскировки: области маскировки используются для скрытия областей вида (выделенных прямоугольной областью маскировки), не являющихся значимыми.
Совет: Если требуется сохранить исходную версию вида, то предварительно скопируйте вид. (Щелкните в Диспетчере проекта правой кнопкой мыши имя вида и выберите команду "Копирование вида"

"Копировать".) Откройте скопированный вид и примените к нему области подрезки и области маскировки. Затем разместите копию вида на листе.
Архитектурные примеры
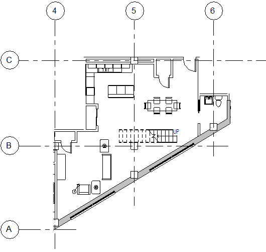
На следующем плане этажа область подрезки непрямоугольной формы скрывает незначимую геометрию модели в правом и левом верхних углах блока комнаты.
Пример несущей конструкции