
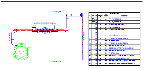
您可以将 BOM 表插入到正交图形中。

BOM 表将列出正交视图中的项目。
您可以使用“表格设置”指定编组和特性(列)。您还可以指定是否包含切割列表。
正交设置(包括新的 BOM 表设置)存储在项目“正交\样式”文件夹中。您可以通过将样式文件夹复制到其他项目来共享它们。
对于表列和编组,正交 BOM 表设置类似于等轴测 BOM 表。与 ISO BOM 表类似,表格设置可与标题栏一起保存。
与 ISO BOM 表不同,绘图和表格区域不受支持。

管理员可以为项目设置默认的 BOM 表。
在“项目设置”中,您可以在正交标题栏中设置 BOM 表。如果将 BOM 表样板(空表)放置在标题栏中,新正交图形将不提示输入位置或尺寸。

在 AutoCAD Plant 3D 2015 及更高版本中,您可以创建正交视图的 BOM 表。管道和管道支撑都在正交 BOM 表中列出。