定义深度提示

若要将深度提示应用到当前立面或剖面图,请定义“图形显示选项”对话框上的设置。

注: 若要将深度提示应用到相同类型的多个视图,请创建并使用定义了“深度提示”设置的视图样板。
  1. 打开剖面或立面视图(仅限“建筑”或“协调”专业)。
  2. 为获得最佳效果和较高性能,请确保为视图指定“远剪裁”:
    1. 在“属性”选项板上,对于“远剪裁”,在“值”字段中单击。
    2. 在“远剪裁”对话框中,选择“剪裁时无截面线”或“剪裁时有截面线”,然后单击“确定”。
    3. 在“属性”选项板上,对于“远剪裁偏移”,指定值来控制视图的剪裁位置。
  3. 在视图控制栏上,单击“视觉样式”“图形显示选项”。
  4. 展开“深度提示”,并选择“显示深度”。
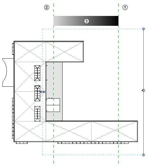
  5. 对于“淡入开始/结束位置”,移动双滑块“近”和“远”控件指定渐变色效果的边界。“近”和“远”值代表距离前(近)和后(远)视图剪裁平面的百分比。
    • 深度提示通过增加与查看器的距离将对象混合到背景颜色(淡入)中来实现。发生此混合的距离范围由滑块控制。
    • “近”滑块控制混合开始的距离 - 在此距离之前的对象都不会淡入。 通常,移动该滑块直到模型中前端大多数要素以最大强度显示。
    • “远”滑块控制图元以“淡入限制”百分比显示的起始距离。
    • 视图从最大强度开始,然后淡入通过“淡入限制”滑块设定的百分比(下一步)。
  6. 移动“淡入限制”滑块以指定在“远端位置”视图的强度。超出“远端位置”的任何对象将以与远端位置图元相同的渐变色显示。

    例如,值为 0 时,最远的图元是不可见的。在大多数情况下,您需要设置一个大于 0 的百分比,以确保能够看到和打印图元(若需要)。

  7. 单击“应用”可查看结果而无需退出对话框,或单击“确定”以接受设置并关闭对话框。