Use this procedure to exclude components with a specific material definition assigned to them from the shrinkwrap of a 2D section.
When you create a 2D section, you can display a section component named Shrinkwrap. The shrinkwrap is the union of all object faces cut by the section line, merged into one component with one hatch pattern. This is a view frequently used for a 2D section.
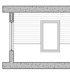
By default, all components that are assigned material definitions are included in the shrinkwrap. However, you may want to exclude certain material definitions, such as glass, from the shrinkwrap.

2D section shrinkwrap with glass excluded (left)

. The Style Manager is displayed with the current drawing expanded in the tree view.
The display representation in bold is the current display representation.