Toleranzberechnungsformeln

Entnehmen Sie grundlegende Gleichungen für geschlossene lineare Maßketten dem folgenden Bild.

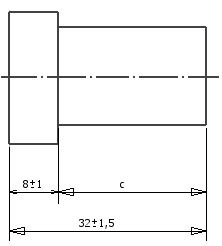
a = 32 ± 1.5 mm, b = 8 ± 1 mm

Steigende/fallende Elemente

Wenn das steigende Element ansteigt, steigt das Schlusselement ebenfalls an. Wenn das fallende Element ansteigt, fällt das Schlusselement, sofern andere Elemente der Kette konstant bleiben.

Schlusselement:

1.c = a - b

Abmessung der oberen Grenze des Schlusselements:

2. c max = a max - b min

Abmessung der unteren Grenze des Schlusselements:

3. c min = a min - b max

Toleranz des Schlusselements (Gleichung 2 minus Gleichung 3):

4. c max - c min = a max - a min - (b min - b max

Beispiel

5. T c = T a + T b

Anmerkung: Die Toleranz des Schlusselements entspricht einer Summe der Toleranzen aller geschlossenen Elemente der Maßketten.

Im Allgemeinen erfüllen lineare Kettentoleranzen die folgende Gleichung:

Entsprechend können die Gleichungen 2 und 3 in eine allgemeine Form gebracht werden.

Die obere Grenzabmessung des Schlusselements entspricht einer Differenz zwischen der Summe der oberen Grenzabmessung der steigenden Elementen und der Summe der unteren Grenzabmessung der fallenden Elemente.

Die untere Grenzabmessung des Schlusselements entspricht einer Differenz zwischen der Summe der unteren Grenzabmessung der steigenden Elemente und der Summe der oberen Grenzabmessung der fallenden Elemente.

Die Nennabmessung des Schlusselements kann durch Gleichung 1 ausgedrückt werden, z. B. in der folgenden Gleichung:

Obere Grenzabweichung des Schlusselements:

Untere Grenzabweichung des Schlusselements: