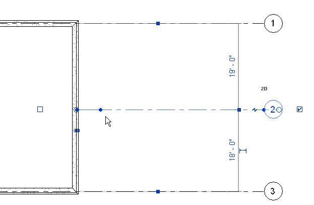
You can adjust the length of the gap or center segment in an individual grid line.
For example, you may want to adjust the gap so the grid line does not display through the middle of a model element. This feature is available when the grid line uses a grid type for which the Center Segment parameter is Custom or Gap. (See Customizing Grid Lines.)

A grid line that has been adjusted to end at the wall
To adjust the center segment of a grid line
Revit displays a blue dot on the grid line. You may need to zoom in to see it clearly.

Properties panel
The default length of the end segments of a grid line is defined by the End Segments Length parameter of the grid type.
The end segment adjusts its length accordingly.