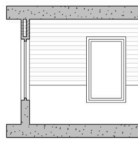
El componente Sombreado de envolvente sombrea la unión de todas las caras de los objetos cortados por una línea de sección. El Sombreado de envolvente está definido por un componente de línea de envolvente exterior o interior. Este componente es específico de las secciones 2D.

Detalle de sombreado de envolvente, con vidrio excluido del envolvente
Un componente de material no puede definir el componente Sombreado de envolvente.