
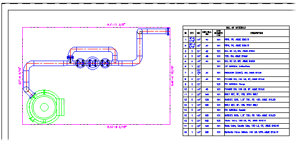
Vous pouvez insérer une table de nomenclature de matériel dans un dessin ortho.

La table de nomenclature de matériel répertorie les éléments de la vue ortho.
Vous pouvez utiliser la configuration des nomenclatures pour spécifier un regroupement et des propriétés (colonnes). Vous pouvez également indiquer s'il est nécessaire d'inclure des listes de coupes.
Les paramètres ortho, notamment les paramètres de la table de nomenclature de matériel, sont enregistrés dans le dossier Orthos\Styles. Vous pouvez les partager en copiant le dossier Style dans un autre projet.
La configuration d'une nomenclature de matériel ortho est semblable à celle des nomenclatures de matériel isométriques pour les colonnes de la table et le regroupement. A l'instar de la nomenclature de matériel iso, la configuration des nomenclatures peut être enregistrée avec le cartouche.
Contrairement aux nomenclatures de matériel ISO, les zones de dessin et de table ne sont pas prises en charge.

Les administrateurs peuvent définir la nomenclature de matériel par défaut d'un projet.
Dans la configuration du projet, vous pouvez configurer la table de nomenclature de matériel dans le cartouche ortho. Si vous placez un gabarit de table de nomenclature de matériel (table vide) dans le cartouche, les nouveaux dessins ortho ne génèrent pas d'invite demandant l'emplacement ou la taille.

Dans AutoCAD Plant 3D 2015 et versions ultérieures, vous pouvez créer une table de nomenclature de matériel pour une vue ortho. Les tuyauteries et les supports de tuyauterie sont répertoriés dans la table de nomenclature de matériel ortho.