A propos des dessins orthographiques (dessins ortho)

Vous pouvez créer des vues orthographiques personnalisées de modèles Plant 3D et les placer dans un dessin 2D.

Les dessins orthographiques sont des fichiers DWG et chacun d'entre eux peut contenir plusieurs vues orthographiques avec des données extraites de modèles Plant 3D. Si les modèles source changent, vous pouvez mettre à jour les dessins orthographiques afin de refléter les modifications apportées.

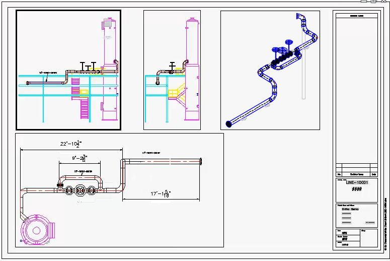
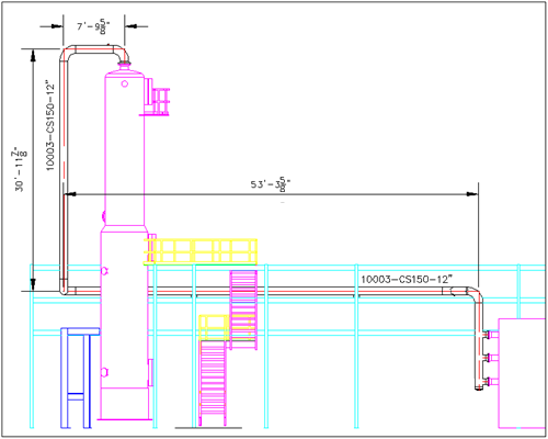
Les dessins orthographiques affichent des vues bidimensionnelles de la tuyauterie, des vannes, des équipements et de l'acier structurel définis dans des modèles Plant 3D. Les dessins peuvent comporter des annotations, des cotes, des lignes de correspondance (vues en plan uniquement), des coupures de tuyau, et peuvent afficher ou masquer des lignes et des objets. L'exemple ci-après présente une vue unique.

Voici un exemple affichant plusieurs vues d'un même dessin.

Vous pouvez configurer un gabarit personnalisé pour les dessins orthographiques avec un cartouche, ou utiliser le modèle par défaut.

Présentation des références de dessin (xréfs) et des xréfs superposées

Les dessins de projet contenant des références à d'autres dessins sont disponibles dans les dessins orthographiques. Les Xréfs n'appartenant pas à un projet sont également disponibles, mais elles apparaissent sous la forme de graphiques uniquement.

Restriction : Les Xréfs superposées ne sont pas disponibles dans les dessins orthographiques. Pour plus d'informations sur les Xréfs superposées, recherchez le terme superposition dans l'aide d'AutoCAD.