La vista di dettaglio è una vista del modello visualizzata come dettaglio o sezione in altre viste. In genere questo tipo di vista rappresenta il modello in una scala di dettaglio maggiore rispetto alla vista principale
Le viste di dettaglio possono essere create come sezioni o dettagli. In quest'ultimo caso è possibile assegnarvi annotazioni di sezione e di dettaglio. In altri termini, una vista di dettaglio creata come dettaglio può anche essere visualizzata come sezione in viste che intersecano le estensioni della vista di dettaglio. Ad esempio, si potrebbe utilizzare un dettaglio per creare una vista di dettaglio dell'intersezione di un muro. Tale dettaglio può essere visualizzato come vista di sezione all'interno della vista di sezione dell'intero edificio.
La visibilità di una vista di dettaglio dipende dalla scala della vista superiore e dal tipo di contorno di taglio, che può intersecare la vista superiore o essere interamente racchiuso all'interno di essa. Il parametro della vista di dettaglio Nascondi nelle scale minori di stabilisce una scala in base alla quale i dettagli vengono visualizzati o nascosti nelle altre viste. Ad esempio, se il parametro Nascondi nelle scale minori di per un'etichetta di dettaglio è impostato su 1/4"=1'0", l'etichetta di dettaglio non viene visualizzata in una vista con scala 1/8"=1'0".
Tutte le viste di dettaglio vengono visualizzate nel Browser di progetto come tali indipendentemente dal fatto che siano state disegnate come dettaglio o come sezione.
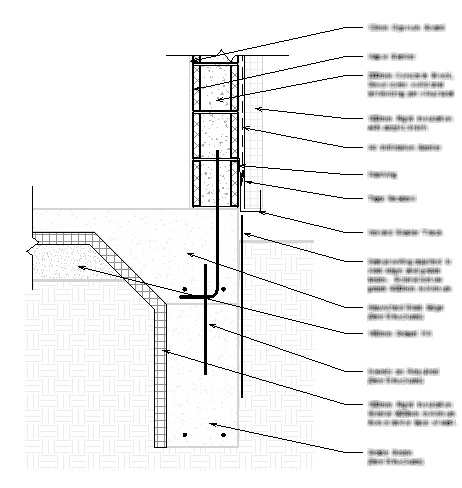
Nell'immagine seguente viene mostrato un esempio di dettaglio della sezione di un muro con geometria del modello come elemento sottostante (in mezzitoni) e componenti di dettaglio 2D aggiuntivi sovrapposti agli elementi del modello.
