パーツ一覧を作成するには

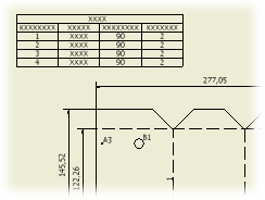
図面内に編成されたパーツのリストを生成します。

パーツ一覧は、アクティブな製図規格に関連付けられたパーツ一覧スタイルで設定されている既定のスタイル セットを使用して作成されます。

iAssembly メンバのビューを選択してパーツ一覧を作成する場合は、ビュー内のメンバが既定になります。スタイルで指定されている場合は、メンバの[数量]列がパーツ一覧に表示されます。iAssembly メンバを参照してパーツ一覧を作成する場合は、アクティブなメンバのパーツ一覧が既定になります。

ヒント: パーツ一覧をコピーして、別の図面シートまたは別の図面に貼り付けることができます。パーツ一覧をドラッグすることもできます。
  1. リボンで、[注釈]タブ [表]パネル [パーツ一覧]の順にクリックします。
  2. [パーツ一覧]ダイアログ ボックスで、パーツ一覧のソースを選択します。
    • 図面ビュー用のパーツ一覧を作成するには、グラフィックス ウィンドウの図面ビューを選択します。
    • ソース ファイルからパーツ一覧を作成するには、[パーツ一覧]ダイアログ ボックスで、[参照]ボタンをクリックしてファイルを開きます。
  3. パーツ一覧およびバルーンを作成するための、適切な部品表ビューを選択します。
    注: パーツ一覧で使用できるようにするには、ソース モデルの部品表で[構成]ビューまたは[パーツのみ]ビューを有効にする必要があります。
  4. [テーブルの折り返し]ダイアログ ボックスで、折り返し方向を設定します。必要に応じて、[自動ラップを有効にする]を選択し、パーツ一覧の最大行数またはパーツ一覧のセクション数を設定します。
  5. [OK]を選択して、[パーツ一覧]ダイアログ ボックスを閉じます。
  6. 図面シートで、パーツ一覧を配置する場所をクリックします。パーツ一覧は、シートの端や隅、または表題欄にスナップされます。

    パーツ一覧の配置方法を表示する

    Get Adobe Flash player

ヒント: パーツ一覧を移動するには、そのパーツ一覧をクリックして新しい位置にドラッグします。