ファミリ エディタについて

ファミリ エディタはグラフィカルな編集モードです。ファミリ エディタを使用して、プロジェクトで使用するファミリを作成、修正できます。

ファミリの作成を開始するには、まずエディタで使用するテンプレートを開きます。一部のテンプレートには平面図ビューや立面図ビューなど複数のビューが含まれています。ファミリ エディタは、見た目と操作性については Revit のプロジェクト環境と同じですが、異なるツールを備えています。使用可能なツールは、編集するファミリのタイプによって異なります。

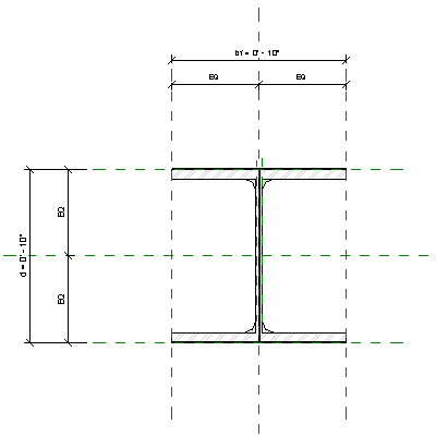
次に示すイメージは、ファミリ エディタのワイド フランジ柱ファミリの平面図ビューです。緑の破線のリファレンス面は、ファミリでジオメトリを拘束するために使用されています。