この練習では、シートを作成して、複数のビューをシートに追加します。
|
カテゴリ
|
新規ユーザ |
|
所要時間
|
10 分 |
|
使用するチュートリアル ファイル
|
GSG_13_sheets.rvt |
|
断面図ビューをシートに追加して、平面図の断面マークにシート情報が含まれるように更新されることを確認します。
目的
- タイトル ブロック テンプレートを使用してシートを作成します。
- ビューをシートに追加して、ビューの配置とタイトル形式を修正します。
ビデオを見る
シートを作成する
- GSG_13_sheets.rvt のプロジェクトを開きます。
- [表示]タブ
[シート構成]パネル
(シート)をクリックします。
- [新規シート]ダイアログの[図面枠を選択]で、[E1 30 x 42 Horizontal : E1 30 x 42 Horizontal]を選択して、[OK]をクリックします。
- 図面枠をクリックしてシートを選択し、シート番号をクリックして、「A1」と入力して、[Enter]を押します。
シートにビューを追加する
- [プロジェクト ブラウザ]の[3D ビュー]で、[View to Building]ビュー タイトルをクリックし、シートの左上隅にドラッグして、マウス ボタンを放します。
配置しやすいように、ビューの外枠が表示されます。
- クリックしてビューを配置します。
- 同じ方法を使用して、[02 - Entry Level]平面図ビューをシートにドラッグし、[View to Building]ビューの下に、左に位置合わせして配置します。
注: シート上でビューの位置を合わせやすいように、破線が表示されます。
- 同じ方法を使用して、[01 - Lower Level]平面図ビューを[02 - Entry Level]ビューの下にドラッグして、中央に位置合わせされるまでビューを少し右に移動し、クリックしてビューを配置します。
- シートの外側をクリックして、ビューの選択を解除します。
- シート上で[01 - Lower Level]平面図ビューのビュー タイトルをクリックして、左にドラッグして上のビューのタイトルと位置を合わせます。破線を使用すると、位置合わせしやすくなります。
- [Esc]を押します。
- シート上で(タイトルだけでなく)[01 - Lower Level]平面図ビューを選択して、右の端点を左にドラッグして、水平のタイトル線分を短くします。
- 同じ方法を使用して、他の 2 つのビューの線分も短くします。
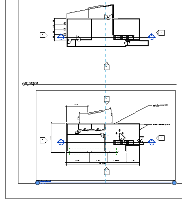
- [プロジェクト ブラウザ]の[断面図(Building Section)]で、[Section 1]ビュー タイトルをクリックして、シート上にビューを配置します。
- シート上で[01 - Lower Level]平面図ビューの断面マークを拡大表示します。断面マークが更新され、[Building Section]ビューが A1 シートに位置されている 4 つ目のビューであることが示されていることに注目してください。
以上で『スタートアップ ガイド』の練習を終了します。