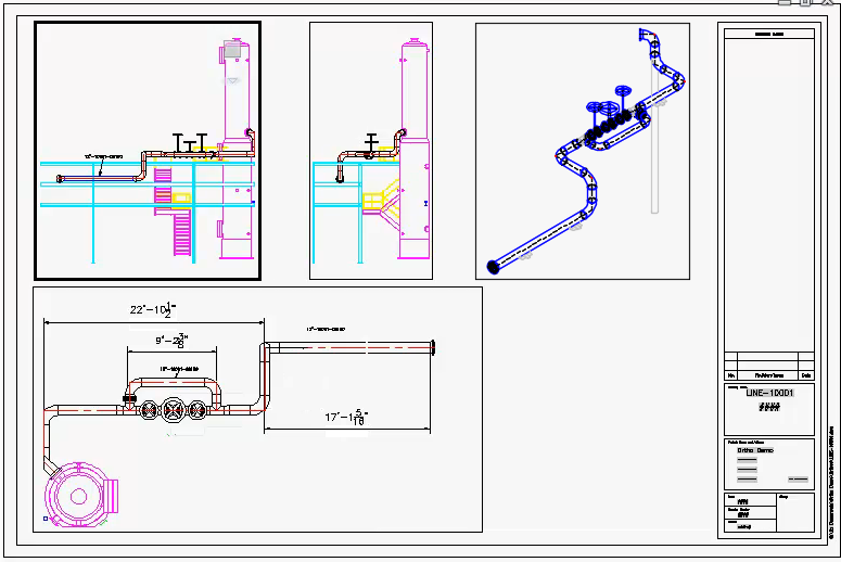
Plant 3D 모형의 사용자 직교 뷰를 작성하여 2D 도면에 배치할 수 있습니다.
직교 도면은 DWG 파일이며, 각각 Plant 3D 모형에서 추출된 데이터와 함께 여러 직교 뷰를 포함할 수 있습니다. 원본 모형이 변경된 경우 직교 도면을 업데이트하여 변경 사항을 반영할 수 있습니다.
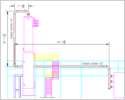
직교 도면에는 Plant 3D 모형에 있는 파이프, 밸브, 장비 및 구조용 강의 2D 뷰가 표시됩니다. 주석, 치수, 매치 선(평면도만), 파이프 간격 등을 포함할 수 있으며, 선 및 객체를 표시하거나 숨길 수 있습니다. 다음은 단일 뷰가 표시된 예입니다.


제목 블록을 사용하여 직교 도면의 사용자화된 템플릿을 설정하거나 기본 템플릿을 사용할 수 있습니다.
다른 도면에 대한 참조가 포함된 프로젝트 도면을 직교 도면에 사용할 수 있습니다. 비프로젝트 외부 참조도 사용할 수 있지만 그래픽으로만 표시됩니다.