Uma vista de detalhe é uma vista do modelo que aparece como uma chamada de detalhe ou corte em outras vistas. Este tipo de vista tipicamente representa o modelo em escalas mais finas de detalhe do que na vista principal.
Uma vista de detalhe pode ser criada como um corte ou uma chamada de detalhe. Quando criado como uma chamada de detalhe, o detalhe pode ter anotações de corte e de chamada de detalhe atribuído ao mesmo. Em outras palavras, a vista de detalhe criada como uma chamada de detalhe também é exibida como um corte em vistas que efetuam a intersecção nas extensões da vistas de chamada de detalhe. Por exemplo, você pode usar uma chamada de detalhe para criar uma vista de detalhe de uma intersecção de parede. A mesma chamada de detalhe pode aparecer como uma vista de corte na vista geral de corte de construção.
A visibilidade do identificador da vista de detalhe depende da escala da vista principal, e se o limite de corte da vista de detalhe efetua a intersecção ou está inteiramente dentro do limite de corte da vista principal. O parâmetro da vista de detalhe Ocultar em escalas mais baixas estabelece a escala na qual os detalhes são mostrados ou ocultos em outras vistas. Por exemplo, se um identificador de detalhe estiver definido para estar oculto em escala mais baixa do que 1/4”=1’0”, então uma vista com uma escala de 1/8" = 1'-0" não exibirá o identificador de detalhe.
Todas as vistas de detalhe, a despeito se desenhadas como uma chamada de detalhe ou corte, são exibidas no Navegador de projeto como uma vista de detalhe.
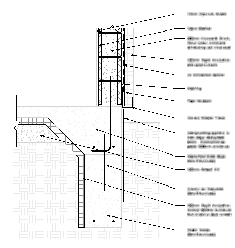
A imagem a seguir mostra uma amostra do Detalhe de corte de parede com a geometria do modelo como a subjacência (em meio tom) e componentes de detalhe 2D adicionais desenhados sobre os elementos do modelo.
