Este método coloca um espaço em áreas complexas, onde o volume da área complexa é restringido a partir de um nível base para um nível acima. É possível usar este tópico ao colocar espaços para áreas como aquelas que abrangem vários níveis, aquelas que têm um nível superior em balanço ou áreas com uma transição como o limite superior para uma parte da área. Para estas situações, linhas de separação de espaço ou níveis adicionais podem ser usados para dividir estas áreas.
No Navegador de projeto, clique duas vezes na planta de piso contendo o nível de referência para a área que abrange vários níveis.
A seguir, você cria uma vista de corte para verificar os espaços verticalmente ao colocá-los.
Dica: Os espaços não são exibidos em vistas de elevação.
Criar vistas de corte
É possível utilizar uma vista de corte existente, mas assegure-se de que a linha de corte efetue a interseção com a área onde os espaços serão colocados.
- Clique na guia Vista
painel Criar
Corte.
- Na vista da planta de piso, desenhe 2 seções perpendiculares na planta de piso, como mostrado.
Assegure-se de que a linha de corte efetue a interseção com a área na qual você está inserindo o espaço. Se não, o espaço não será exibido na vista de corte.
- No Navegador de projeto, clique duas vezes na vista da nova seção para abri-la.
Criar níveis
Este tópico presume que níveis padrão existem no projeto e que eles não precisam ser criados. Se os níveis não existirem, então será preciso criá-los.
- Clique em Modificar.
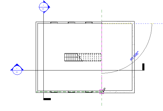
Dividir a área usando linhas de separação de espaço
- Clique na planta de piso para torná-la a vista ativa.
- Clique na guia Analisar
painel Espaços e zonas
Separador de espaço e desenhe um separador de espaço para dividir a área de acordo com os diferentes limites superiores. Nota: As linhas de separação de espaço são componentes de delimitação de ambiente.
- No Navegador de projeto, abra as novas vistas de corte.
- Feche todas as vistas, exceto as duas vistas de corte e a planta de piso onde deseja colocar o espaço e insira WT no teclado para posicionar as três vistas lado a lado.
Também é possível clicar na guia Vista
painel Janelas
Lado a lado.
Ativar visibilidade de espaços
- Clique em uma vista de corte para torná-la ativa.
- Insira VG no teclado.
- Na guia Categorias de modelos da caixa de diálogo Visibilidade/Gráficos, navegue para baixo até Espaços.
- Expanda Espaços, selecione Interior e de referência (se desejar exibir a mira de referência) e clique em OK.
- Repita para tornar os espaços visíveis na outra vista de corte e na vista de planta de piso.
Colocar um espaço
- Com a vista de planta de piso ativa, clique na guia Analisar
painel Espaços e zonas
Espaço.
- Na Barra de opções, faça o seguinte:
- Em Limite superior, especifique o nível acima.
Ao especificar o limite superior para um espaço abaixo de um telhado, especifique o limite superior para o nível que está localizado acima do topo do telhado para que o espaço efetue o snap para o telhado. Se o nível não existir, crie-o. Consulte Colocar espaços até o telhado para obter mais informações.
- Em Deslocamento, insira 0' 0" (0,00 mm).
Essas duas opções especificam a extensão vertical ou a altura do espaço.
Nota: Se o limite superior e o deslocamento forem especificados para além do nível acima, o limite vertical do espaço efetuará o snap para um componente de delimitação de ambiente, como um telhado ou um piso, mesmo que o limite superior seja maior do que o componente de delimitação de ambiente. Isto ocorre porque, com a opção Áreas e volumes selecionada (configuração padrão), o limite vertical do espaço efetuará o snap para os componentes delimitantes de ambiente, como tetos, pisos e telhados. O volume do espaço será calculado até o componente de delimitação de ambiente. A opção Áreas e volumes está localizado na guia Arquiteto

painel suspenso Ambiente e área

Cálculos de área e volume.
- Na caixa Espaço, verifique se Novo está selecionado ao colocar um novo espaço, ou selecione um espaço não colocado na lista para inseri-lo.
Selecione as seguintes opções, como necessário:
- Identificar na colocação: Coloca um identificador de espaço na colocação do espaço.
Identificar na colocação é selecionado por padrão. Se Identificar na colocação estiver selecionado, é possível selecionar o tipo de identificador do Seletor de tipo.
- Caixa de localização do identificador: especifica Horizontal, Vertical ou Modelo como a localização do identificador de espaço.
Somente aplicável se Identificar na colocação estiver selecionado.
- Chamada de detalhe: Cria uma linha de chamada de detalhe para o identificador de espaço.
Somente aplicável se Identificar na colocação estiver selecionado.
- Exibir os elementos vinculáveis: Realça os elementos de delimitação de ambiente no modelo de construção para reconhecimento imediato.
- Na vista de planta do piso, mova o cursor sobre uma área no modelo de construção e clique para colocar um espaço.
Nota: Os espaços somente podem ser colocados em vistas de planta de piso.
- Clique em Modificar.
- Selecione o espaço.
- Na paleta Propriedades, em Análise de energia, faça um dos seguintes:
- Selecione Ocupação se o espaço for ocupado.
- Desmarque Ocupação se o espaço não for ocupado.
- Clique em OK.
Nota: Se você colocar um espaço em uma área que contenha um ambiente, o parâmetro Ocupação será selecionado automaticamente. Isto define o espaço como ocupado. Se a área não contiver um ambiente, o parâmetro Ocupação será automaticamente desativado. Isto define o espaço como não ocupado. Sempre é possível redefinir o espaço ao selecionar ou desmarcar este parâmetro. O parâmetro Ocupação afeta a análise de cargas de aquecimento e resfriamento.
Verificar os espaços
- Na vistas de seção e de planta de piso, verifique se as áreas sombreadas representando o volume dos espaços estão restringidas a partir do nível base para o nível acima e que áreas sem sombra (causadas por cavidades ou poços) não existam. Isto fornece um cálculo de volume mais preciso.
- Se o espaço não estiver restringido como especificado, na vista de corte verifique se o limite superior do espaço está especificado para o nível acima e redefina o espaço verticalmente, se necessário.
Também é preciso solucionar todas as áreas sem sombra.
Outros espaços complexos podem ser divididos utilizando linhas de separação de espaço ou níveis, como mostrado.
Exemplo da esquerda: Um nível divide a área na horizontal. A área inferior tem sua base como Nível 1 e seu limite superior como Nível 2. Um segundo espaço é especificado com sua base como Nível 2 e seu limite superior como o nível Telhado superior.
Exemplo da direita: Uma linha de separação de espaço divide a área na vertical. A área inferior tem sua base como Nível 1 e seu limite superior como o nível Telhado superior. O espaço 2 utiliza o Nível 2 como sua base e o nível Telhado superior como seu limite superior.