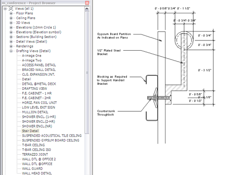
Можно импортировать вид из другого приложения САПР и использовать его в качестве чертежного вида Revit. Затем можно сформировать ссылку на чертежный вид для создания выносного элемента или разреза, а также разместить его на листах в комплекте конструкторской документации.
панель "Создание"
"Чертежный вид".
панель "Импорт"

