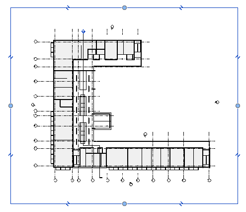
Редактирование области подрезки

Используйте области подрезки для скрытия частей модели на виде.

Области подрезки могут быть прямоугольной или непрямоугольной формы.

  1. В виде плана, фасада или разреза выберите область подрезки и перейдите на вкладку "Редактировать изменения" | <тип вида>панель "Режим " "Редактировать подрезку".
  2. Внесите в область обрезки необходимые изменения с помощью инструментов на панелях "Изменить" и "Рисование". Измените существующие линии или удалите линии для получения эскиза необходимой формы.
    Прим.: Если область подрезки имеет непрямоугольную форму, то полученный файл PDF может получиться большего размера. См. раздел Поиск и устранение неисправностей: печать видов и листов для получения дополнительных сведений.
  3. По завершении изменений выберите «Выход из режима редактирования».
Прим.: Если требуется восстановить отредактированную подрезку до прямоугольной формы, выберите ее и нажмите кнопку "Редактировать изменения" | <тип вида>панель "Режим" "Восстановить подрезку".