Чтобы настроить видимость базовых элементов в области видимости, необходимо связать с ней все базовые элементы.
Например, для проекта, где заданы две области видимости с именами "Область видимости 2" и "Область видимости 1" следует выбрать "Область видимости 2".
Теперь база отображается только на тех видах, секущие плоскости которых пересекаются с выбранной областью видимости. Если секущая плоскость вида находится вне границ области видимости, то соответствующая база на этом виде не отображается.
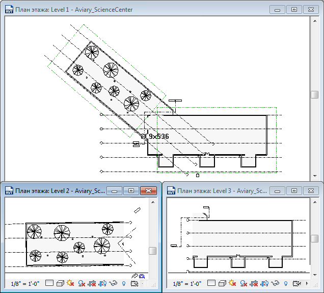
Например, на следующем рисунке показаны области видимости, расположенные вокруг главного здания и вокруг крыла. Область видимости 1 применена к сетке главного здания, а область видимости 2 – к сетке крыла. В результате на зависимых видах (см. нижние рисунки) отображаются только те сетки, которые относятся к изображенной части здания.

Изменение размеров баз с использованием области видимости
Можно изменить границы баз внутри области видимости; для этого следует выбрать область и раздвинуть/сузить ее границы.

Линии уровня двигаются вместе с границей области видимости
Для возврата к прежним границам базы следует выбрать уровень, щелкнуть правой кнопкой мыши, из контекстного меню выбрать "Восстановление до границ 3D". Границы 3D модели нельзя выдвинуть за пределы области видимости, т.к. они взаимосвязаны, в то же время границы 2D модели на виде можно изменить. Этот параметр возвращает границы базы в первоначальное состояние, чуть в стороне от области видимости.