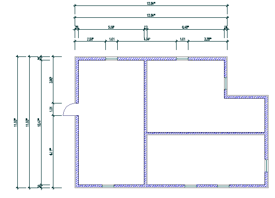
关联的 AEC 标注是基于样式的注释对象,这些对象会随着关联对象的变化而自动更新。AEC 标注样式定义一些标注点,这些标注点确定要为该样式可以用于标注的每个对象显示哪些测量结果。
在下面的示例中,已将墙长、洞口宽度和墙交点设置为样式中的标注点。如果将门加宽,则标注将会更新,以反映新的测量结果。

可为特定的对象类型定义样式。例如,一个 AEC 标注样式可能会指定,对于墙,将为长度、窗墙洞的最大洞口宽度和墙交点显示标注。体量元素的另一个 AEC 标注样式可能会将体量元素的边缘和中心指定为标注点。
也可以对不同的视图定义不同的标注点。例如,在“平面高比例图”中,可以只标注建筑的外边界;而在“平面低比例图”中,可以同时标注墙长以及墙洞口。
在 AEC 标注样式中,最多可以定义十个尺寸链,其中每个尺寸链使用不同的标注点。例如,第一个链可以标注墙长和墙洞口,第二个链可以标注多构件墙的结构构件。
在 AEC 标注样式中,还可以指定是否在标注中使用上标,以及尺寸界线长度是固定的还是可变的。