本节介绍了提到管网零件时常用的某些术语。
结构术语
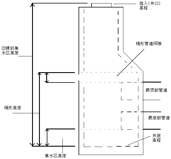
- 井口。检修孔或集水池(连接)结构的顶部高程。
- 框架。检修孔上覆土厚度的支撑物或集水池的格栅。框架、覆土厚度和篦子的顶部高程通常与插入(井口)高程吻合。
- 覆土厚度。检修孔的顶部入口覆土厚度,用于维修或检查检修孔。封盖通常为圆形,也可以为三角形,以便在将其卸下时,其不会落入检修孔中。此覆土厚度位于框架中且通常由铸铁制成。
- 格栅。集水池的顶部开口,通常包含许多开口,以使曲面上的水可以流入结构。格栅位于框架中且通常由铸铁制成。格栅可以是各种造型,但通常为圆形或正方形。
- 井底和井底深度。井底是指连接结构内侧上的管道内底区域或小室,例如集水池。井底有时用作收集碎屑的蓄水池。井底深度是指从结构内侧的底部到与其连接的所有管道最低管道内底之间的距离。特定类型结构的井底深度可以根据设计需求变化。通常,检修孔没有井底深度。
下图显示了典型连接结构上组件的位置。
管道术语
- 管道内底。管道内侧底部的高程。也称为流线。
- 路拱。管道内侧顶部的高程。
- 管道中心线高程。管道中心线的高程。
- 覆土厚度或深度。是指管道最顶部外部上方的材质的深度。
- 坡度。当坡度用于表示管道的坡度时,它是陡峭程度的测量单位。对于管道,坡度由通过垂直高度比水平宽度来定义,其中垂直高度是指沿管道长度水平宽度的高程差(水平测量)。坡度通常以百分比表示。例如,管道坡度为 2% 表示对于每 100 英尺管道水平长度,管道上升 2 英尺。在 AutoCAD Civil 3D 中,坡度可以在图形的对话框和标签中以多种方式表示。