详图视图是一个在其他视图中显示为详图索引或剖面的模型视图。 这种类型的视图通常表示的模型的详图比例比在父视图更精细。
详图视图可以创建为剖面或详图索引。 创建为详图索引时,详图可包含为其指定的剖面注释和详图索引注释。也就是说,创建为详图索引的详图视图,也可以在与详图索引视图范围相交的视图中显示为剖面。 例如,可使用详图索引创建墙交点的详图视图。这一相同的详图索引在建筑剖面透视图中可显示为剖面视图。
详图视图标记的可见性取决于父视图的比例,以及详图视图的裁剪边界是与父视图相交还是完全在父视图范围之内。 详图视图参数“当比例粗略度超过下列值时隐藏”设置了一个比例,详图根据此比例在其他视图中显示或隐藏。 例如,如果详图标记设置为在比例粗略度超过 1/4"=1'0" 时隐藏,则比例设置为 1/8" = 1'-0" 的视图将不会显示详图标记。
所有详图视图在项目浏览器中都显示为详图视图,而不管将它们绘制为详图索引还是剖面。
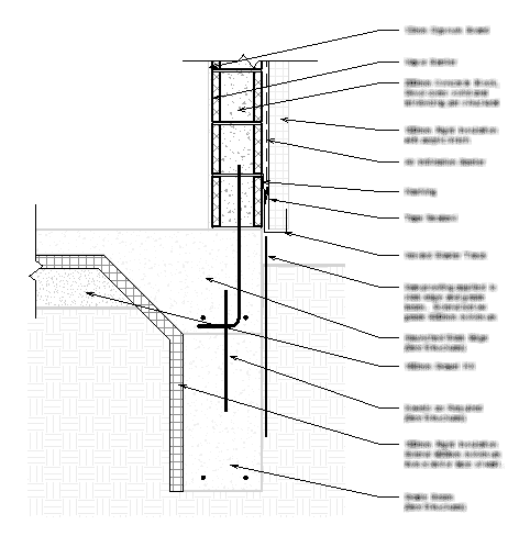
下列图像示例显示的是“墙剖面”详图,其中的模型几何图形作为底图(半色调)并在模型图元上另外添加了二维详图构件。
