模型文件功能會從 AutoCAD 和 Inventor 3D 模型產生關聯式 2D 圖面,並從多個非 Autodesk 產品的 3D 模型產生非關聯式 2D 圖面。
模型文件 2D 圖面的基本建築圖塊為圖面視圖物件。

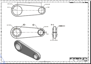
圖面視圖是包含 3D 模型 2D 投影的矩形物件。只有當您選取視圖或將游標移至視圖上方時,才會看見圖面視圖的圖框。雖然視圖圖框位於目前的圖層上,但是並不會列印出來。系統會一直顯示視圖幾何圖形,且幾何圖形會建立在一組事先定義的圖層上。由於視圖幾何圖形與來源 3D 模型相關聯,因此您無法選取視圖幾何圖形以進行修改。但是,您可以透過修改所繪製之圖層視圖幾何圖形的性質,變更視圖幾何圖形的外觀。
您放置在圖面上的第一個視圖即為基準視圖。基準視圖是直接從 3D 模型導出的圖面視圖。

一旦將基準視圖放置到配置中,您便可從中產生投影視圖。與基準視圖不同的是,投影視圖並不是直接從 3D 模型導出。而是從基準視圖 (或已存在配置中的其他投影視圖) 中導出。系投影視圖會與其產生來源視圖維持父子關係。子系視圖的設定都是源自於父系。如果需要,您可以取代這些設定。
您也可以從任何既有圖面視圖中產生剖面視圖與詳圖。剖面視圖是投影視圖,展示模型的內部詳細資料。詳圖是投影視圖,可放大模型選取的部分。
一旦您建立視圖後,您可以貼附註記、標註、符號和其他註解至視圖幾何圖形。

所有複製指令均會篩掉圖面視圖物件,但您可以移動、旋轉或刪除這些物件,就像處理其他物件一樣。
舊版 AutoCAD 無法編輯由新版 AutoCAD 建立的圖面視圖。例如,在 AutoCAD 2013 中無法編輯 AutoCAD 2014 建立的圖面視圖,即使這兩種 AutoCAD 版本皆儲存至相同的 (AutoCAD 2013) 檔案格式。 您無法在該圖檔中編輯任何圖面視圖性質、新增圖面視圖或更新任何圖面視圖。