Trennen einer Bauteilliste in einem Plan
Wenn Sie eine Bauteilliste in einen Plan einfügen, können Sie sie in zwei oder mehr Abschnitte aufteilen (trennen), damit sie besser auf dem Plan Platz findet.
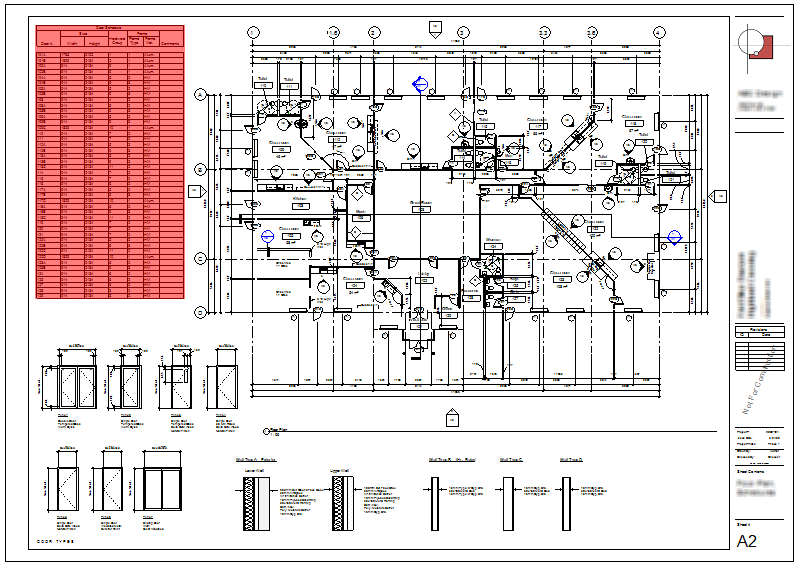
Ändern von Bauteillisten mit Bildern in einem Plan
Sie können die Breite der Spalten und die Höhe der Zeilen im Ansichtsfenster für die Bauteilliste im Plan anpassen, um die Darstellung von Bildern zu optimieren.