Die Eigenschaft Disziplin steuert die Anzeige disziplinspezifischer Elemente in einer Ansicht.
Mithilfe der Eigenschaft Disziplin können Sie Folgendes steuern:
Die Eigenschaft Disziplin wirkt sich sowohl bei Verwendung eines einzelnen Modells, das mehrere Disziplinen umfasst, als auch bei Verknüpfung des Modells mit anderen disziplinspezifischen Modellen auf Ansichten aus.
Sie können diese Eigenschaft auch zum Ordnen von Ansichten im Projektbrowser verwenden. Weitere Informationen erhalten Sie unter Anordnen von Ansichten im Projektbrowser.
Um die Einstellung Disziplin für eine Ansicht festzulegen, wählen Sie deren Namen im Projektbrowser aus oder öffnen die Ansicht. In der Eigenschaftenpalette befindet sich die Eigenschaft Disziplin im Abschnitt Grafik. Wählen Sie einen Wert aus der Liste.
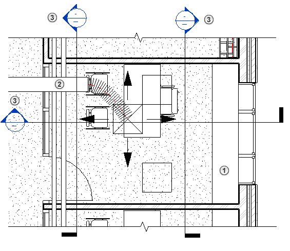
Die folgenden Beispiele basieren auf einem Modell, das den folgenden Schnittplan für Ebene 1 enthält. Dabei zeigt der grüne Pfeil den gesamten Ansichtsbereich für die entsprechenden Draufsichten an. Der blaue Pfeil zeigt den primären Ansichtsbereich an. Dieser wurde über die Decke hinaus in den Luftraum und unter die Ebene 1 erweitert. Der orangefarbene Pfeil zeigt die Ansichtstiefe an. (Weitere Informationen finden Sie unter Info zum Ansichtsbereich.) In den unten gezeigten Draufsichten wurde der Detaillierungsgrad Fein eingestellt, damit HLS-, Elektro- und Rohrleitungselemente zur Verdeutlichung vollständiger dargestellt werden.

Falls gewünscht, können Sie das Modell herunterladen, um zu verdeutlichen, wie die Eigenschaft Disziplin sich auf Ansichten auswirkt: view_discipline_example.rvt
Wenn Sie beim Erstellen einer Ansicht eine bestehende Ansicht zugrunde legen, übernimmt die neue Ansicht die Disziplin der Ausgangsansicht. Diese Regel gilt für Detailausschnitte, Schnitte, Ansichten und Duplikate von Ansichten.
Angenommen, Sie öffnen die Ansicht eines Tragwerksplans (eine Draufsicht, in der für die Eigenschaft Disziplin der Wert Ingenieurbau eingestellt wurde) und erstellen mithilfe des Werkzeugs Schnitt einen Schnitt der Draufsicht. Für die Eigenschaft Disziplin der neuen Schnittansicht wird der Wert Ingenieurbau übernommen.
Ansichtsbeschriftungen (die Symbole zum Kennzeichnen von Schnitten, Ansichten und Detailausschnitten) werden nur dann in einer Ansicht angezeigt, wenn die Disziplin der aktuellen Ansicht mit der Disziplin der Zielansichten übereinstimmt. Weitere Informationen finden Sie in den Beispielen unten.
Wenn für die Eigenschaft Disziplin der Wert Architektur gewählt wurde, gilt:
So werden z. B. sowohl nichttragende Stützen als auch Tragwerksstützen sowie HLS-, Elektro- und Rohrleitungselemente angezeigt.
Beispiele: Der folgende Grundriss zur Architektur zeigt:
An einer Seite der Wand liegen Kabeltrassen frei. An der anderen Seite der Wand sind die Kabeltrassen durch Architekturelemente verdeckt.
Für eine Schnittansicht, in der für die Eigenschaft Disziplin der Wert Architektur gewählt wurde, wird eine Beschriftung angezeigt. In der Draufsicht werden keine Beschriftungen für Ansichten anderer Disziplinen angezeigt.
Wenn für die Eigenschaft Disziplin der Wert Ingenieurbau gewählt wurde, gilt:
So werden z. B. sowohl nichttragende Stützen als auch Tragwerksstützen sowie HLS-, Elektro- und Rohrleitungselemente angezeigt.
Beispiele: Der folgende Tragwerksplan zeigt:
Nichttragende Wände werden nicht angezeigt. (Vergleichen Sie dies mit der oben gezeigten Draufsicht für die Architektur.)
Für eine Schnittansicht, in der für die Eigenschaft Disziplin der Wert Ingenieurbau gewählt wurde, wird eine Beschriftung angezeigt. In der Draufsicht werden keine Beschriftungen für Ansichten anderer Disziplinen angezeigt.
Verdeckte Linien für unterhalb der Geschossdecke liegende Tragwerkselemente werden angezeigt, da der Ansichtsbereich der Draufsicht sich weiter als Ebene 1 nach unten erstreckt.

Wenn für die Eigenschaft Disziplin einer der Werte Lüftung, Elektrooder Sanitär gewählt wurde, gilt:
Beispiele: Die folgende HLS-Draufsicht zeigt:
Elemente, die zu Architektur und Ingenieurbau gehören (Wände, Türen, Fenster, Möbel) werden in Abhängigkeit vom Ansichtsbereich in Halbtondarstellung angezeigt. Deckenelemente werden in der Ansicht nicht angezeigt.
HLS-, Elektro- und Rohrleitungselemente werden wie in den Objektstilen definiert angezeigt. Diese Elemente überlagern ohne Berücksichtigung ihrer tatsächlichen vertikalen Position im Modell andere Elemente.
Für eine Schnittansicht, in der für die Eigenschaft Disziplin der Wert HLS gewählt wurde, wird eine Beschriftung angezeigt. In der Draufsicht werden keine Beschriftungen für Ansichten anderer Disziplinen angezeigt.
Verdeckte Linien für HLS-, Elektro- und Rohrleitungselemente werden in der Ansicht angezeigt.

Wenn für die Eigenschaft Disziplin der Wert Koordination gewählt wurde, gilt:
So werden z. B. sowohl nichttragende Stützen als auch Tragwerksstützen sowie HLS-, Elektro- und Rohrleitungselemente angezeigt.
Einige HLS-, Elektro - und Rohrleitungselemente innerhalb des Ansichtsbereichs werden ohne Rücksicht darauf, ob die Schnittebene sie schneidet, immer angezeigt.
Darüber hinaus werden HLS-, Elektro- und Rohrleitungselemente, die oberhalb der Schnittebene liegen, vor anderen Elementen angezeigt. Die Zeichenreihenfolge dieser Elemente untereinander wird durch ihre relative Höhe über der Ebene der Ansicht definiert. Liegen solche Elemente unterhalb der Schnittebene, richtet sich ihre Zeichenreihenfolge nach ihrem Abstand zur Schnittebene.
Beispiele: Die folgende Draufsicht zur Koordination zeigt:
In der Ansicht werden Elemente aller Disziplinen entsprechend dem Ansichtsbereich angezeigt.
HLS-, Elektro- und Rohrleitungselemente werden angezeigt und überlagern andere Elemente gemäß den oben beschriebenen Regeln.
Beschriftungen für Schnittansichten werden für alle Disziplinen angezeigt.
