Al colocar una vista en un plano, puede ocultar partes de la vista a fin de concentrar la atención en un área concreta.
Utilice alguna de las técnicas siguientes, o ambas:
- Región de recorte: use la función de región de recorte para centrar la atención en un área concreta del modelo de construcción.
- Regiones de máscara: use regiones de máscara para ocultar áreas de la vista (dentro de la región de recorte rectangular) que no sean relevantes en ese momento.
Consejo: Si desea conservar la versión original de la vista, cree un duplicado de la misma en primer lugar. Para ello, haga clic en el nombre de la vista en el Navegador de proyectos y seleccione Duplicar vista

Duplicar. Abra la vista duplicada y aplique regiones de recorte o de máscara según se requiera. A continuación, coloque la vista duplicada en el plano.
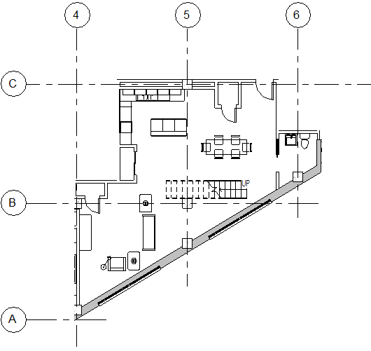
Ejemplo arquitectónico
En el siguiente plano de planta, una región de recorte no rectangular oculta geometría de modelo irrelevante en las esquinas superiores derechas e izquierdas del apartamento.