Acerca del Editor de familias

El Editor de familias es un modo de edición gráfica que permite crear y modificar familias para incluirlas en el proyecto.

Para crear una familia, se debe abrir una plantilla para utilizarla en el editor. La plantilla puede incluir varias vistas, por ejemplo de plano o de alzado. El Editor de familias tiene el mismo aspecto y uso en general que el entorno de proyecto de Revit LT, pero contiene herramientas distintas. La disponibilidad de las herramientas depende del tipo de familia que se esté editando.

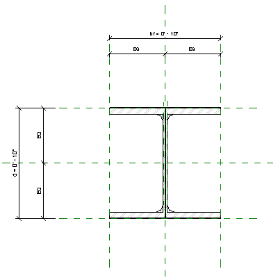
La imagen siguiente muestra una vista de plano de una familia de pilares de ala ancha en el Editor de familias. Los planos de referencia con una línea verde discontinua se utilizan para restringir la geometría de la familia.