Mostrar restricciones

Eche momentáneamente un vistazo a las restricciones de alineación y cota en una vista para modificar los elementos del modelo o solucionar los problemas relacionados con ellos.

Vídeo: Mostrar restricciones
Nota: Al grabar este vídeo se utilizó Revit. Al llevar a cabo los procedimientos descritos utilizando Revit LT, puede que note pequeñas diferencias en las funciones y en la interfaz de usuario.
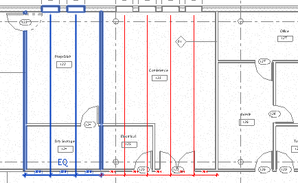
  1. En la barra de controles de vista, haga clic en (Mostrar restricciones). El área de dibujo Mostrar restricciones muestra un contorno de color para indica que se encuentra en el modo Mostrar restricciones. Todas las restricciones se muestran en color y los elementos del modelo se muestran en tramado (gris).
    Nota: Para facilitar la visualización de las restricciones en este modo, asegúrese de que la opción de visualización Líneas finas no esté seleccionada (la ficha Vistagrupo Gráficos Líneas finas).
  2. Seleccione una restricción para resaltar los elementos que están restringidos. En el siguiente ejemplo, está seleccionada la restricción de la izquierda, y los dos muros y las dos ventanas que están restringidos también están resaltados.
  3. Opcional: elimine la restricción simplemente eliminándola o desbloqueándola.
    Nota: Restricciones que se han añadido al modo de boceto para la visualización de un elemento en tramado. Haga doble clic en el elemento para entrar en el modo de boceto para modificar o eliminar la restricción.
  4. En la barra de controles de vista, haga clic en para salir del modo Mostrar restricciones.