Pour exclure une définition de matériau d'un emballage de coupe 2D

Cette procédure permet d'exclure des composants d'objets associés à une définition de matériau spécifique de l'emballage d'une coupe 2D.

Lorsque vous créez une coupe 2D, vous pouvez afficher un composant de coupe appelé Emballage. L'emballage est l'union de toutes les faces de l'objet coupées par la ligne de coupe, fusionnées en un seul composant avec un motif de hachures. Cette vue est fréquemment utilisée pour les coupes 2D.

Par défaut, tous les composants qui sont associés à des définitions de matériaux sont inclus dans l'emballage. Cependant, vous pouvez, si nécessaire, exclure certaines définitions de matériaux de l'emballage, comme le verre.

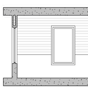
Emballage coupe 2D avec verre exclu (à gauche)

  1. Cliquez sur l'onglet Gérergroupe de fonctions Style et affichageGestionnaire des styles.

    Le Gestionnaire des styles s'affiche, avec le dessin en cours détaillé dans l'arborescence.

  2. Développez Objets multifonctions, puis Définitions de matériaux.
  3. Sélectionnez la définition de matériau à modifier.
  4. Cliquez sur l'onglet Propriétés d'affichage.
  5. Sélectionnez la représentation d'affichage à modifier et sélectionnez Remplacement de style.

    La représentation d'affichage en cours apparaît en gras.

  6. Si nécessaire, cliquez sur .
  7. Cliquez sur l'onglet Autre.
  8. Sélectionnez Exclure de l'emballage de coupe 2D
  9. Cliquez sur OK.