Sélectionnez un segment ou une longueur de conduit, puis effectuez une ou plusieurs des opérations suivantes :
- Dans l'onglet Modifier | Conduits, spécifiez une commande.
- Dans la barre des options, spécifiez les options de conduit.
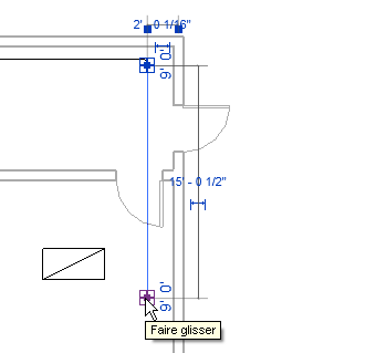
- Faites glisser le contrôle pour déplacer ou prolonger le segment de conduit vers une nouvelle extrémité ou le relier à un autre conduit.
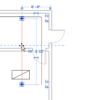
- Faites glisser le segment de conduit vers un nouvel emplacement.