Au cours de l'exercice qui suit, vous allez créer une feuille et y ajouter plusieurs vues.
|
Catégorie
|
Nouveaux utilisateurs |
|
Temps nécessaire
|
10 minutes |
|
Fichiers didacticiels utilisés
|
GSG_13_sheets.rvt |
|
Vous allez ajouter une vue en coupe à la feuille et constater que l'extrémité de ligne de coupe est mise à jour dans la vue en plan pour inclure les informations de la feuille.
Objectifs
- Créer une feuille à l'aide d'un gabarit de cartouche.
- Ajouter des vues à la feuille et modifier le positionnement de la vue et le format du titre.
Visionner la vidéo
Création d'une feuille
- Ouvrez le projet GSG_13_sheets.rvt.
- Cliquez sur l'onglet Vue
le groupe de fonctions Composition de feuille
(Feuille).
- Dans la boîte de dialogue Nouvelle feuille, sous Sélection de cartouches, sélectionnez E1 30 x 42 Horizontal : E1 30 x 42 Horizontal, puis cliquez sur OK.
- Cliquez sur le cartouche pour sélectionner la feuille, puis cliquez sur le numéro de la feuille, entrez A1, puis appuyez sur la touche Entrée.
Ajout de vues à la feuille
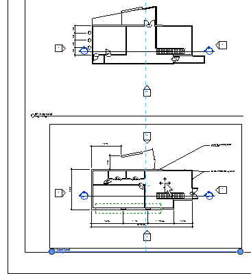
- Dans l'arborescence du projet, sous Vues 3D, cliquez sur le titre de vue View to Building et faites-le glisser vers l'angle supérieur gauche de la feuille, puis relâchez le bouton de la souris.
Le contour de la vue s'affiche pour faciliter le positionnement.
- Cliquez pour placer la vue.
- En utilisant la même méthode, faites glisser la vue de plan d'étage 02 - Entry Level sur la feuille et alignez-la à gauche au-dessous de la vue View to Building.
Remarque : Des lignes en pointillés s'affichent pour faciliter l'alignement des vues sur la feuille.
- En utilisant la même méthode, faites glisser la vue en plan d'étage 01 - Lower Level, en déplaçant la vue légèrement vers la droite jusqu'à ce que les centres s'alignent, puis cliquez pour placer la vue.
- Cliquez en dehors de la feuille pour désactiver la vue.
- Cliquez sur le titre de la vue de plan d'étage 01 - Lower Level sur la feuille et faites-le glisser vers la gauche pour l'aligner avec le titre de la vue située au-dessus. Utilisez les lignes en pointillés pour effectuer l'alignement plus facilement.
- Appuyez sur la touche Echap.
- Sélectionnez la vue de plan d'étage 01 - Lower Level sur la feuille (pas uniquement le titre) et faites glisser l'extrémité droite vers la gauche pour raccourcir la ligne de titre horizontale.
- Utilisez la même méthode pour raccourcir les lignes pour les deux autres vues.
- Dans l'arborescence du projet, sous Coupes (Coupe du bâtiment), cliquez sur le titre de la vue Coupe 1 et positionnez la vue sur la feuille.
- Effectuez un zoom avant sur l'extrémité de ligne de coupe de la vue de plan d'étage 01 - Lower Level sur la feuille. Vous remarquerez que l'extrémité de ligne de coupe est mise à jour pour indiquer que la vue Coupe du bâtiment est la quatrième vue placée sur la feuille A1.
Il s'agit du dernier exercice du guide de mise en route.