A modellek dokumentálása egy olyan szolgáltatás, amely asszociatív 2D rajzokat hoz létre AutoCAD és Autodesk Inventor 3D modellekből, valamint nem asszociatív 2D rajzokat hoz létre több nem Autodesk termékben készített 3D modellekből.
A modelldokumentációs 2D rajzok alapvető építőeleme a rajznézet objektum.

A rajznézet egy négyszögletes objektum, amely a 3D modell 2D vetítését tartalmazza. A rajznézetek határa csak a nézet kiválasztásakor és a mutató ráhúzásakor látható. Bár a rajznézet határa az aktuális fólián található, nem nyomtatható ki. A nézetgeometria mindig látható, és a fóliák előre meghatározott készletén jön létre. Mivel a nézetgeometria asszociatív a forrásként használt 3D modellel, nem jelölhet ki nézetgeometriát a módosításhoz. Ugyanakkor a nézetgeometria megjelenését módosíthatja a fóliákra rajzolt nézetgeometria tulajdonágainak módosításával.
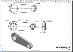
A rajzra helyezett első nézet neve bázisnézet. A bázisnézetek közvetlenül a 3D modellből származtatott rajznézetek.

Miután bázisnézetet helyezett el egy elrendezésen, vetített nézeteket generálhat belőle. A bázisnézetekkel ellentétben a vetített nézetek nem közvetlenül a 3D modellből vannak származtatva. Ehelyett egy bázisnézetből vannak származtatva (vagy az elrendezésben már meglévő másik vetített nézetből). A vetített nézetek szülő-gyermek kapcsolatot tartanak fenn azzal a nézettel, amelyből létrejöttek. A gyermek nézetek beállításai a szülőből származnak. Ha szükséges, felülírhatja ezeket a beállításokat.
Metszeti nézetek és részletnézetek bármely meglévő rajznézetből létrehozhatók. A metszeti nézet olyan vetített nézet, amely egy modell belső részleteit jeleníti meg. A részletnézet olyan vetített nézet, amely a modell egy kijelölt részét nagyítja ki.
Ha létrehozta a nézeteket, megjegyzéseket, méreteket, szimbólumokat és más feliratozásokat is hozzáadhat a nézetgeometriához.

A rajznézetobjektumokat a rendszer kiszűri az összes másolási parancsból, mozgatni, forgatni és törölni azonban a többi objektumhoz hasonlóan ezeket is lehet.
Az újabb verziójú AutoCAD által készített rajznézetek nem szerkeszthetők az AutoCAD régebbi verzióiban. Az AutoCAD 2014 által létrehozott rajznézeteket például nem lehet szerkeszteni az AutoCAD 2013-as verziójában akkor sem, ha mindkét verzió ugyanazt a fájlformátumot (AutoCAD 2013) használja. Az ilyen rajzfájlokban nem szerkesztheti a rajznézetek tulajdonságait, nem adhat hozzá és nem frissíthet rajznézeteket.