Informazioni sulle quote associative derivanti dalla selezione di oggetti

Le quote AEC associative sono oggetti annotazione basati sullo stile, che vengono aggiornati automaticamente quando l'oggetto associato viene modificato. Lo stile di quota AEC definisce i punti di quota che determinano quali misure vengono visualizzate per ciascun oggetto quotabile mediante lo stile.

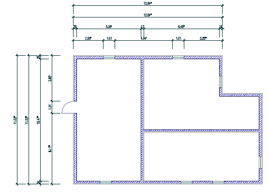
Nell'esempio che segue vengono definiti come punti di quota dello stile la lunghezza dei muri, la larghezza delle aperture e le intersezioni dei muri. Se la larghezza di una porta viene incrementata, le quote corrispondenti vengono aggiornate in base alle nuove misure.

È possibile definire stili per tipi di oggetti specifici. Ad esempio in uno stile di quota AEC è possibile specificare che nel caso dei muri le quote verranno visualizzate per le lunghezze, le larghezze massime di apertura delle finestre e le intersezioni dei muri. Un altro stile di quota AEC per gli elementi massa può ad esempio specificare come punti di quota i bordi e il centro dell'elemento massa.

Nota: È possibile assegnare quote associative agli oggetti AEC in riferimenti esterni anche quando gli oggetti sono nidificati a vari livelli di profondità. Questa operazione risulta particolarmente utile per i progetti di disegno molto grandi, nei quali le parti dell'edificio sono distribuite in diversi file di disegno.

È inoltre possibile definire punti di quota diversi a seconda delle viste. Ad esempio, in Piano meno dettagliato, può risultare utile assegnare quote soltanto ai contorni esterni di un edificio, mentre in Piano più dettagliato può risultare utile assegnare quote anche alle lunghezze dei muri e alle aperture nei muri.

All'interno dello stile di quota AEC è possibile definire fino a dieci sequenze di quote, ciascuna con punti di quota diversi. Ad esempio la prima sequenza può assegnare quote alle lunghezze dei muri e alle aperture nei muri, mentre la seconda sequenza può assegnare quote ai componenti strutturali dei muri multicomponente.

Nello stile di quota AEC è inoltre possibile specificare se utilizzare la scrittura in apice per le quote e se la lunghezza della linea di estensione è fissa o variabile.