Stiramento dei connettori esistenti e aggiunta, spostamento e scambio dei pin del connettore.
Nella barra degli strumenti Inserisci connettore sono disponibili gli strumenti che consentono di modificare i connettori e i relativi pin. È inoltre possibile aggiungere, rimuovere o spostare i pin presenti nel connettore.
Stiramento dei connettori esistenti


. Trova
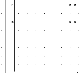
Specificare l'estremità del connettore da stirare: Selezionare la parte inferiore di PJ1
Specificare il secondo punto di spostamento:
Trascinare il connettore in basso verso la parte inferiore di Black Box 1.


Aggiunta dei pin dei connettori


. Trova
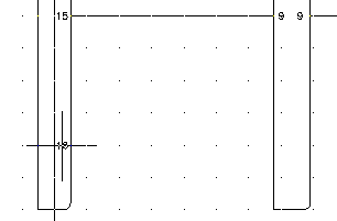
Selezionare connettore: Selezionare PJ1
Specificare dove inserire il nuovo pin o [Reimposta]<16>:
Selezionare 4 spazi verso il basso dal pin 15 su PJ1, fare clic con il pulsante destro del mouse, quindi selezionare Invio
Il successivo numero di pin disponibile (16) viene inserito nel punto selezionato.



. Trova
Selezionare connettore: Selezionare PJ6
Specificare dove inserire il nuovo pin o [Reimposta]<10>:
Selezionare il nuovo pin 16 su PJ1 per inserire il pin 10 in linea con tale pin, fare clic con il pulsante destro del mouse, quindi selezionare Invio.

Modifica dei pin connettore


. Trova
Selezionare il pin del connettore da spostare: Selezionare il pin 16 su PJ1
Specificare la nuova posizione del pin 16: Selezionare 2 spazi in alto su PJ1
Selezionare il pin del connettore da spostare: Selezionare il pin 10 su PJ6
Specificare la nuova posizione del pin 10:
Selezionare il pin 16 su PJ1 per spostare il pin 10 in linea con tale pin, quindi fare clic con il pulsante destro del mouse.



. Trova
Selezionare il pin del connettore: Selezionare il pin 16 su PJ1
Selezionare il pin del connettore: scambiare con: Selezionare il pin 12 su PJ1, fare clic col pulsante destro del mouse


. Trova
Selezionare il connettore da invertire: Selezionare il connettore in linea in alto, fare clic col pulsante destro del mouse



. Trova
Spaziatura pin: 1,0
Conteggio pin: 2
Spaziatura fissa
Elenco pin: 1
Inserisci tutto
Specificare il punto di inserimento o [Z=zoom, P=panoramica, X=intersezione fili, V=orizzontale/verticale, TAB=inverti]:
Selezionare il punto in cui inserire il connettore sul lato superiore del black box 1


. Trova
Selezionare il connettore da ruotare o [Mantieni]:
Selezionare il nuovo connettore, fare clic con il pulsante destro del mouse, quindi selezionare Invio
