Quando si inserisce una vista in una tavola, è possibile nascondere parti della vista e mettere in risalto un'area specifica.
Utilizzare uno o entrambi i metodi descritti di seguito.
- Regione di taglio: utilizzare la regione di taglio per mettere in risalto un'area particolare del modello di edificio all'interno della vista.
- Mascheratura: utilizzare le mascherature per nascondere aree irrilevanti di una vista all'interno della regione di taglio rettangolare.
Suggerimento: Se si desidera mantenere la versione originale della vista, creare una vista duplicata. Nel Browser di progetto, fare clic con il pulsante destro del mouse sul nome della vista, quindi scegliere Duplica vista

Duplica. Aprire la vista duplicata e applicare le regioni di taglio e le mascherature desiderate. Posizionare quindi la vista duplicata sulla tavola.
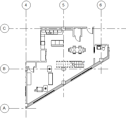
Esempio di layout degli elementi architettonici
Nella seguente pianta del pavimento, una regione di taglio non rettangolare nasconde geometria del modello non rilevante nell'angolo superiore destro e superiore sinistro dell'appartamento.
Esempio di layout degli elementi strutturali