Informazioni sull'intervallo di visualizzazione

L'intervallo di visualizzazione è costituito da un insieme di piani orizzontali che consentono di controllare la visibilità e la visualizzazione degli oggetti in una vista di pianta.

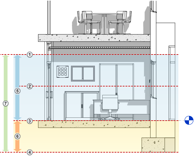
Tutte le viste di pianta includono una proprietà denominata Intervallo di visualizzazione, nota anche come intervallo visibile. I piani orizzontali che definiscono l'intervallo di visualizzazione sono Parte superiore, Piano di taglio e Parte inferiore. I piani di ritaglio Parte superiore e Parte inferiore rappresentano rispettivamente la parte più alta e la parte più bassa dell'intervallo di visualizzazione. Il piano di taglio determina a quale altezza viene tagliata la vista di determinati elementi. Questi tre piani definiscono l'intervallo primario dell'intervallo di visualizzazione.

Video: controllo dell'intervallo di visualizzazione

La profondità della vista è un piano aggiuntivo al di fuori dell'intervallo primario. È possibile modificare la profondità della vista in modo da visualizzare gli elementi situati al di sotto del piano di ritaglio inferiore. Per default, la profondità della vista coincide con il piano di ritaglio inferiore.

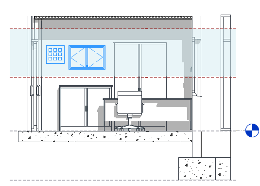
Il prospetto che segue mostra l'intervallo di visualizzazione di una vista di pianta: Parte superiore , Piano di taglio , Parte inferiore , Offset (dal piano inferiore) , Intervallo primario e Profondità della vista .

La vista di pianta a destra mostra il risultato per l'intervallo di visualizzazione corrente.

Visualizzazione di elementi nella vista di pianta

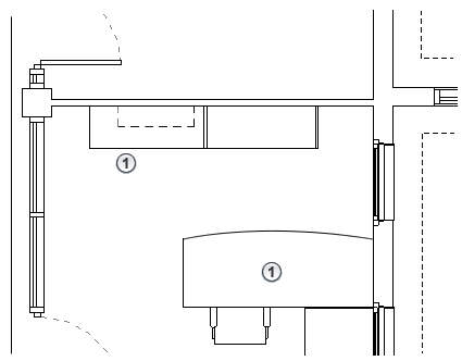
Elementi intersecati dal piano di taglio

In una vista di pianta di Revit LT gli elementi intersecati dal piano di taglio vengono visualizzati in base alle seguenti regole:

Le eccezioni per la visualizzazione di elementi intersecati dal piano di taglio sono le seguenti:

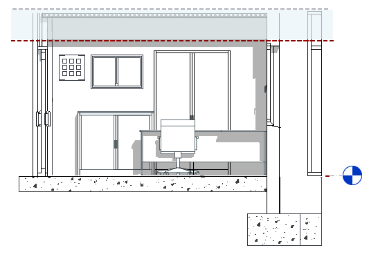
Nella seguente vista di prospetto, l'evidenziazione in azzurro indica gli elementi che intersecano il piano di taglio.

La vista di pianta a destra mostra quanto segue:

Elementi disegnati con lo spessore di linea di taglio (muri, porta e finestra).

Elementi disegnati con lo spessore di linea di proiezione in quanto non tagliabili (arredi fissi).

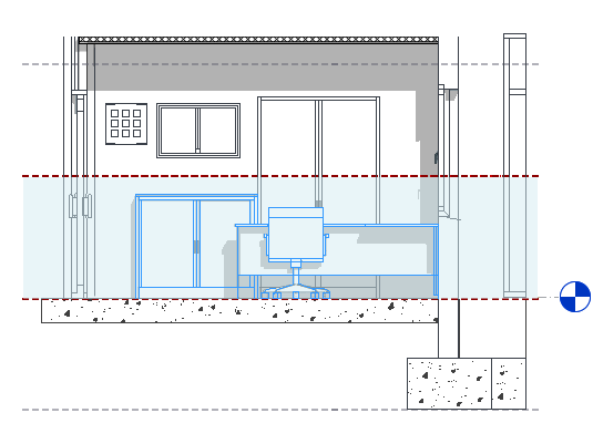
Elementi sotto il piano di taglio e sopra il piano di ritaglio inferiore

In una vista di pianta di Revit LT questi elementi vengono disegnati utilizzando lo spessore di linea di proiezione della categoria di elementi.

Nella seguente vista di prospetto, l'evidenziazione in azzurro indica gli elementi che si trovano sotto il piano di taglio e sopra il piano di ritaglio inferiore.

La vista di pianta a destra mostra quanto segue:

Elementi disegnati utilizzando lo spessore di linea di proiezione in quanto non vengono intersecati dal piano di taglio (armadio, scrivania e sedia).

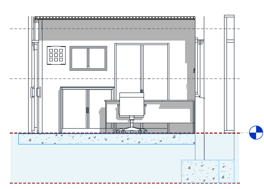
Elementi sotto il piano di ritaglio inferiore e inclusi nella profondità della vista

Gli elementi inclusi nella profondità della vista vengono disegnati utilizzando lo stile di linea <Oltre>, indipendentemente dalla categoria dell'elemento.

Eccezioni: per i pavimenti, i pavimenti strutturali, le scale e le rampe che non rientrano nell'intervallo di visualizzazione viene utilizzato un intervallo modificato posto 4 piedi (circa 1,22 metri) sotto la parte inferiore dell'intervallo primario. In tale intervallo modificato gli elementi vengono disegnati utilizzando lo spessore di linea di proiezione per la categoria. Se si trovano al di fuori dell'intervallo modificato ma all'interno della profondità della vista, tali elementi vengono disegnati con lo stile di linea <Oltre>.

Ad esempio, nel seguente prospetto, l'evidenziazione in azzurro indica gli elementi posti al di sotto del piano di ritaglio inferiore e all'interno della profondità della vista.

La vista di pianta a destra mostra quanto segue:

Un elemento (fondazione) incluso nella profondità della vista e disegnato con lo stile di linea <Oltre>.

Un elemento disegnato con lo spessore di linea di proiezione per la categoria di appartenenza, in quanto soddisfa le condizioni dell'eccezione.

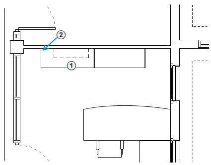
Elementi sopra il piano di taglio e sotto il piano di ritaglio superiore

Questi elementi non vengono visualizzati in una vista di pianta, a meno che la categoria di appartenenza non sia finestra, arredi fissi o modello generico. Gli elementi di queste tre categorie vengono disegnati con lo spessore di linea di proiezione e visualizzati dall'alto.

Ad esempio, nel seguente prospetto, l'evidenziazione in azzurro indica gli elementi che si trovano tra la parte superiore dell'intervallo di visualizzazione e il piano di taglio.

La vista di pianta a destra mostra quanto segue:

Arredi fissi a muro disegnati con lo spessore di linea di proiezione. In questo caso, lo stile di linea tratteggiato per le linee di proiezione è definito nella famiglia degli arredi fissi.

Applique (categoria di illuminazione) che non viene disegnata nella pianta, perché la categoria di appartenenza non è finestra, arredi fissi o modello generico.

L'intervallo di visualizzazione in una pianta del controsoffitto (RCP)

Come viste di pianta, le piante del controsoffitto dispongono inoltre di un'impostazione di Intervallo di visualizzazione, ma con alcune differenze.

Nota: Le regioni di pianta sono utilizzate per controllare l'aspetto degli host e degli elementi ospitati, principalmente di porte e finestre in muri, quando il prospetto determina se sono visibili. Le regioni di pianta non possono essere utilizzate per controllare la visualizzazione degli elementi MEP.