概要 - 座標値を組み合わせる(座標フィルタ)

座標フィルタを使用すると、既存のオブジェクト上の位置から、対やセットとしてではなく 1 つずつの座標値を抽出できます。

座標フィルタでは、新しい座標位置は、1 番目の位置から X 値を、2 番目の位置から Y 値を、3D 座標では 3 番目の位置から Z 値を使用して指定されます。座標フィルタをオブジェクト スナップとともに使用すると、既存のオブジェクトから座標値を抽出できます。

一般に、座標フィルタは、長方形の中心を指定したり、UCS の XY 平面に 3D 点の投影を配置する場合などに使用されます。

コマンドのプロンプトでフィルタを指定するには、ピリオドと、XYZ の文字を 1 つまたは複数入力します。次のように入力すると、特定の座標値に限定されます。

例: 2D で座標フィルタを使用する

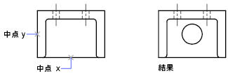
次の図の固定プレートの穴は、プレートの水平線と垂直線のそれぞれの中点から X,Y 座標を抽出することによって、プレートの中心に配置されたものです。

次に、コマンド プロンプト シーケンスを示します。

コマンド: circle

円の中心点を指定 または [2 点(2P)/3 点(3P)/接、接、半(T)]: .x

どこの: mid

どこの: 固定プレートの下側の水平線を選択します。

どこの: (YZ 値を入力): mid

どこの: 固定プレートの左側の垂直線を選択します。

どこの: 円の半径を指定 または [直径(D)]: 穴の半径を指定します。

座標フィルタは、点の指定を求めるプロンプトが表示されたときにのみ機能します。 コマンドのプロンプトに対して座標フィルタを指定しようとすると、エラー メッセージが表示されます。

例: 3D で座標フィルタを使用する

この例では、座標フィルタを使用して、3D オブジェクトの中心(重心)に点オブジェクトを作成する方法を示します。分かりやすいように隠線を除去しています。新しい点の X 値は、最初に指定した位置から抽出されます。同様に、Y 値は 2 番目の位置から抽出され、Z 値は 3 番目の位置から抽出されます。この 3 つの値を組み合わせて、新しい点の座標値が作成されます。

コマンド: point

点を指定: .x

仮想値を入力 mid

どこの 点(1)をクリックします。

どこの (YZ 値を入力): .y

仮想値を入力 mid

どこの 点(2)をクリックします。

どこの (Z 値を入力): mid

どこの 点(3)をクリックします。