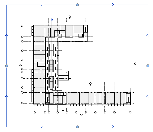
トリミング領域を編集する
ビュー内のモデルのパーツを非表示にするには、トリミング領域を使用します。
トリミング領域は長方形や非長方形で設定することができます。
平面図、立面図、または断面図ビューで、トリミング領域を選択し、[編集修正 | <ビュー タイプ>]タブ
[モード]パネル
[トリミングを編集]をクリックします。
[修正]パネルと[描画]パネルのツールを使用し、必要に応じてトリミング領域を編集します。既存の線分を修正するか、線分を削除してまったく異なる形状をスケッチします。
注:
トリミング領域が長方形以外の場合、PDF に出力する際にファイル サイズが大きくなる可能性があります。詳細については、「
トラブルシューティング: ビューとシートを出力する
」を参照してください。
編集が終了したら
[編集モードを終了]をクリックします。
注:
編集したトリミングを長方形の形状にリセットするには、トリミングを選択し、[編集修正 | <ビュー タイプ>]タブ
[モード]パネル
[トリミングをリセット]をクリックします。
親トピック:
ビューに表示する要素をコントロールする
関連タスク
トリミング領域のサイズをイメージで変更する
トリミング領域のサイズを明示的に変更する
トリミング領域を表示または非表示にする
関連情報
スケッチ