拘束の一時表示
寸法や位置合わせの拘束をビューに一時的に表示し、モデルの要素のトラブルシューティングや修正を行います。
ビデオ: 拘束の一時表示
注:
このビデオは、Revit を使用して作成されました。Revit LT を使用して手順を実行するときは、機能やユーザ インタフェースが多少異なる場合があります。
ビュー コントロール バーで
(拘束の一時表示)をクリックします。
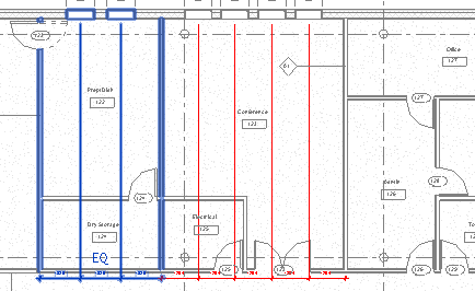
[拘束の一時表示]作図領域には色付きで境界が表示され、[拘束の一時表示]モードを使用していることを示します。すべての拘束が色付きで表示され、モデル要素はハーフトーン(グレー)で表示されます。
注:
このモードで拘束を見やすくするために、[細線]表示オプションが選択されていないことを確認します([表示]タブ
[グラフィックス]パネル
[細線])。
拘束された要素をハイライト表示するには、拘束を選択します。
次の例では、左側の拘束が選択されており、拘束されている 2 つの壁と 2 つの窓もハイライト表示されています。
省略可能: 拘束を削除するには、単に拘束を削除するか、ロックを解除します。
注:
スケッチ モードで要素に追加した拘束はハーフトーン カラーで表示されます。拘束を修正または削除するためにスケッチ モードに切り替えるには、要素をダブルクリックします。
ビュー コントロール バーで、
をクリックして[拘束の一時表示]モードを終了します。
親トピック:
拘束
関連概念
拘束について
均等拘束について
寸法による拘束を適用する
関連タスク
均等拘束を適用する
EQ 表示を変更する
既定の均等テキスト ラベルを変更する
拘束を削除する
関連情報
均等式を設定する