와이어를 따라 구성요소를 빠르게 이동하고 하위 구성요소를 삽입합니다.
구성요소를 올바른 위치에 삽입하지 않은 경우에는 구성요소 빠른 이동을 수행할 수 있습니다. 빠른 이동 도구를 사용하여 구성요소 또는 와이어 번호를 선택한 다음 모든 항목이 연결된 상태에서 와이어를 따라 앞뒤로 이동합니다. 와이어 또는 회로의 전체 횡선을 선택하고 새 위치로 빠르게 이동할 수 있습니다. 빠르게 이동한 항목 중에 상위 구성요소가 있는 경우 빠르게 이동한 구성요소를 다시 태깅할지 묻는 메시지가 표시됩니다.
빠른 이동 도구는 와이어 번호, 구성요소, 터미널, PLC 입출력 모듈, 대시 링크 선, 신호 화살표, 와이어, 와이어 교차 루프가 있는 와이어에서 사용합니다.

구성요소 빠른 이동


을 클릭합니다. 찾기
SCOOT에 대한 구성요소, 와이어 또는 와이어 번호 선택:
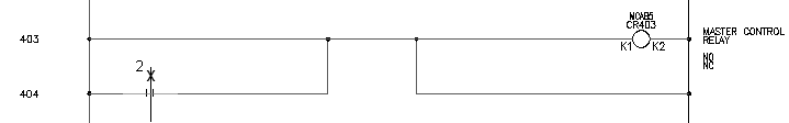
선 연계 403에 삽입된 구성요소를 선택합니다.
커서 모양이 상자로 변경됩니다.
SCOOT에 대한 구성요소, 와이어 또는 와이어 번호 선택: 끝
커서를 오른쪽으로 이동하여 클릭한 다음 마우스 오른쪽 버튼을 클릭하여 명령을 종료합니다.
구성요소가 새 위치로 이동합니다.

빠른 이동 도구를 사용하여 구성요소 또는 와이어 번호를 잡고 와이어를 따라 앞뒤로 밀 수 있습니다. 모든 것이 연결된 상태에서 와이어 또는 회로의 전체 횡선을 잡고 새 위치로 빠르게 이동할 수 있습니다.
기호에 주석을 다는 경우를 제외하고 상위 구성요소와 하위 구성요소를 삽입하는 단계는 동일합니다.
하위 구성요소 삽입


를 클릭합니다. 찾기
삽입점 지정:
선 연계 404의 와이어에서 핫 와이어 가까이에 커서를 놓고 (1)을 클릭합니다.

하위 구성요소 삽입/편집 대화상자가 표시됩니다. AutoCAD Electrical은 릴레이 접점의 태그 이름을 자동으로 지정하지 않으므로 편집 상자에 일반 "CR"로 나타납니다. 릴레이 접점 태그 이름을 결정합니다. 릴레이 접점은 활성 프로젝트의 도면에서 상위 릴레이 코일에 링크되어야 하는 하위 구성요소입니다. 하위 구성요소의 태그 이름은 상위 릴레이 코일의 태그 이름과 동일합니다.
상위/같은 계열을 클릭하고 도면에서 상위 항목을 선택하여 태그 이름을 지정합니다. 또는 도면 또는 프로젝트를 클릭하여 패밀리 이름이 같은 구성요소 리스트에서 선택합니다.
MCAB5 CR403 MASTER CONTROL RELAY

상위 항목 값은 접점으로 즉시 전송됩니다.
구성요소 태그: CR403
설명: 설명 1: MASTER CONTROL
설명: 설명 2: RELAY
상호 연계: 403
위치 코드: MCAB5
핀: 핀 1: A1X
핀: 핀 2: A1Y

하위 구성요소가 삽입되고 실시간으로 상호 연계됩니다. 코일에 새 하위 접점의 선 연계 번호가 주석으로 표시됩니다. 하위 접점에는 상위 코일의 선 연계 위치가 주석으로 표시됩니다.
