2D 단면 수축포장에서 재료 제외

다음 과정에 따라 2D 단면의 수축포장에서 특수 재료가 지정된 구성요소를 제외하십시오.

2D 단면을 작성할 경우 "수축포장"이라는 단면 구성요소를 표시할 수 있습니다. 수축포장은 하나의 해치 패턴을 가진 하나의 구성요소로 결합된 단면선에 의해 절단된 모든 객체 면의 병합입니다. 2D 단면에 자주 사용하는 뷰입니다.

기본적으로, 재료가 지정된 모든 구성요소는 수축포장에 포함되어 있습니다. 그러나 수축포장에서 유리와 같은 특정 재료를 제외할 수도 있습니다.

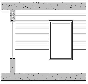
유리가 제외된 2D 단면 수축포장(왼쪽)

  1. 변경하려는 스타일을 포함하는 스타일 정의 그룹이 있는 구성요소를 선택한 후 다음을 수행합니다.
    • 다음을 클릭합니다. 덕트 탭 일반 패널 시스템 스타일 편집 드롭다운 덕트 스타일 편집 .
    • 다음을 클릭합니다. 파이프 탭 일반 패널 시스템 스타일 편집 드롭다운 파이프 스타일 편집 .
    • 다음을 클릭합니다. 케이블 트레이 탭 일반 패널 시스템 스타일 편집 드롭다운 시스템 스타일 편집 .
    • 다음을 클릭합니다. 케이블 트레이 부속 탭 일반 패널 시스템 스타일 편집 드롭다운 시스템 스타일 편집 .
    • 파이프 탭일반 패널시스템 스타일 편집 드롭다운시스템 스타일 편집.
  2. 스타일 관리자의 왼쪽 창에서 수축포장 섹션에서 제외시킬 재료에 지정된 시스템 스타일을 선택합니다.
  3. 기타 탭을 클릭합니다.
  4. 2D 단면 수축포장에서 제외를 선택합니다.
  5. 확인을 클릭합니다.