구속조건 표시
뷰의 치수 및 정렬 구속조건을 잠시 살펴보고 모델의 문제를 해결하거나 요소를 수정합니다.
비디오: 구속조건 표시
주:
이 비디오는 Revit을 사용하여 기록되었습니다. Revit LT를 사용하여 다음 절차를 수행하면 기능 및 사용자 인터페이스에서 약간의 차이를 발견할 수 있습니다.
뷰 조절 막대에서
(구속조건 표시)를 클릭합니다.
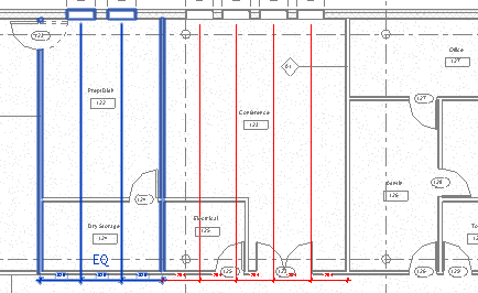
구속조건 표시 도면 영역은 색상 경계를 표시하여 구속조건 표시 모드에 있음을 나타냅니다. 모든 구속조건은 색상으로 표시되고 모델 요소는 중간색(회색)으로 표시됩니다.
주:
이 모드에서 구속조건을 보기 쉽게 하려면 가는 선 표시 옵션이 선택되지 않았음을 확인하십시오(뷰 탭
그래픽 패널
가는 선).
구속조건을 선택하여 구속된 요소를 하이라이트합니다.
다음 예제에서는 왼쪽의 구속조건이 선택되고 구속된 2개 벽과 2개 창도 하이라이트됩니다.
선택 사항: 간단히 구속조건을 삭제하거나 잠금 해제하여 구속조건을 제거합니다.
주:
중간색으로 요소를 표시하기 위해 스케치 모드에서 추가된 구속조건. 구속조건을 수정하거나 제거하려면 요소를 두 번 클릭하여 스케치 모드로 들어가십시오.
구속조건 표시 모드를 종료하려면 뷰 조절 막대에서
을 클릭합니다.
상위 주제:
구속조건
관련 개념
구속조건 정보
동일 구속조건 정보
치수가 있는 구속조건 적용
관련 태스크
동일 구속조건 적용
동일 화면표시 변경
기본 동일 문자 레이블 변경
구속조건 제거
관련 정보
동일 수식 정의