Diálogo Dimensionar Vista

Utilize esse diálogo para:

Vista — Selecione a vista na lista, ou clique dentro da vista desejada no desenho.

Dimensões gerais — Selecione esta opção para exibir as dimensões X e Y do item na vista selecionada, caso as dimensões ainda não existam.

Furos:

Origem — A origem é definida para a origem da vista por padrão. Se você alterar a origem, a origem da vista é atualizada para a nova posição. A origem é marcada por linhas de centro.

Para alterar a origem:

Insira as coordenadas X Y Z ou clique no botão Posição para abrir a caixa de diálogo Posição, que contém as ferramentas de entrada de posição.

Layout — Você pode escolher o layout para o texto das dimensões ordenadas nas seguintes posições:

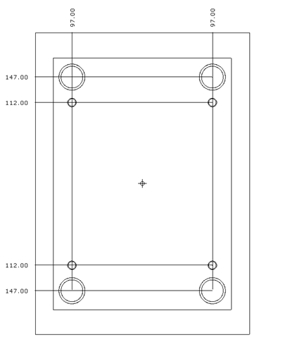
O exemplo de vista a seguir mostra o layout de dimensões de furo utilizando a opção de layout Esquerda Superior.

Posicionar dimensões do lado mais próximo do modelo — Selecione essa opção para posicionar o texto de dimensão do lado mais próximo do centro do furo. Isso é útil para placas com centenas de furos, pois melhora a clareza do desenho.

Desmarque a opção para posicionar todas as dimensões em um único lado. Para especificar a posição do texto da dimensão, selecione Esquerda Superior, Direita Superior, Esquerda inferior ou Direita inferior.

Direção do furo — Selecione quais furos dimensionar:

Dimensionar furos pré-furados — Selecione essa opção para permitir que placas com furos pré-furados sejam dimensionadas.

Se dimensões estiverem próximas, as linhas de chamada da dimensão são desenhadas em ângulo automaticamente para evitar sobreposição.