O Editor de família é um modo de edição gráfica, que permite criar e modificar famílias a serem incluídas em seu projeto.
Quando você começa a criar uma família, abre um modelo para usar no editor. O modelo pode incluir múltiplas vistas, como plantas e elevações. O Editor de família tem a mesma aparência e funcionalidade do ambiente de projeto no Revit, mas apresenta diferentes ferramentas. A disponibilidade de ferramentas depende do tipo de família que você está editando.
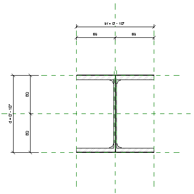
A imagem a seguir mostra uma vista de planta de uma família de colunas com flange larga no Editor de família. Os planos de referência tracejados em verde são utilizadas para restringir a geometria na família.
