“规程”属性确定规程专有图元在视图中的显示方式。
使用“规程”属性来控制以下行为:
无论使用包含多个规程的单一模型,还是使用链接到其他特定规程模型的模型,“规程”属性都会影响视图。
也可以在项目浏览器中使用此属性来组织视图。 请参见在项目浏览器中组织视图。
若要设置视图的“规程”属性,请在项目浏览器中选择视图名称,或打开此视图。 在“属性”选项板中,“规程”属性列在“图形”部分。 从列表中选择一个值。
下面的示例基于一个模型的标高 1 剖面平面。 在该剖面平面中,绿色箭头指示对应平面视图的整个视图范围。 蓝色箭头指示主视图范围,该范围已扩展到高于天花板进入正压送风系统,并低于标高 1。 橙色箭头指示视图深度。 (请参见关于视图范围。) 在下面示例平面视图中,“详细程度”被设置为“精细”,以便更充分地显示机械、电气和管道图元,从而方便说明。

如果需要,可以下载模型,以更好地了解“规程”属性如何影响视图:view_discipline_example.rvt
基于现有视图创建视图时,新视图将继承原始视图的规程。 此规则适用于详图索引、剖面、立面和视图副本。
例如,假设您打开一个结构平面视图(“规程”属性设置为“结构”的平面视图),然后使用“剖面”工具创建平面视图的一个剖面。 新剖面视图的“规程”属性也将被设置为“结构”。
仅当当前视图的规程与目标视图匹配时,视图标记(该符号用于指示剖面、立面和详图索引)才会显示在视图中。 请参见下面的示例。
“规程”属性设置为“建筑:
例如,视图显示建筑柱和结构柱,以及机械、电气和管道图元。
示例:在以下建筑楼层平面中:
在墙的一侧,将显示电缆桥架。 在墙的另一侧,电缆桥架被建筑保护层遮挡住了。
标记显示“规程”属性设置为“建筑”的剖面视图。 该平面不显示已指定给其他规程的视图标记。
“规程”属性设置为“结构”:
例如,视图显示建筑柱和结构柱,以及机械、电气和管道图元。
示例:在以下结构平面视图中:
非结构墙不显示。 (请与上面所示的建筑平面进行比较)。
“规程”属性设置为“结构”的剖面视图的标记显示。 该平面不显示已指定给其他规程的视图标记。
显示隐藏线以展示楼板下面的结构框架图元,因为此平面的视图范围延伸到标高 1 之下。

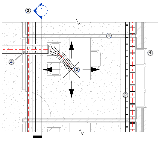
当“规程”属性设置为“机械”、“电气”或“管道”时:
示例:在以下机械平面视图中:
建筑和结构图元(墙、门、窗、家具)基于“视图范围”以半色调显示。 天花板图元未显示在视图中。
机械、电气和管道图元根据“对象样式”中的定义显示。 无论这些图元在模型中的实际垂直位置如何,这些图元将覆盖其他图元。
“规程”属性设置为“机械”的剖面视图的标记显示。 该平面不显示已指定给其他规程的视图标记。
机械、电气和管道图元的隐藏线显示在视图中。

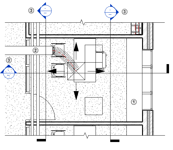
“规程”属性设置为“协调”:
例如,视图显示建筑柱和结构柱,以及机械、电气和管道图元。
视图范围内的一些机械、电气和管道图元会显示,无论剖切面是否与这些图元相交。
此外,剖切面上方的机械、电气和管道图元绘制在其他图元顶部。 对于这些图元,其绘图顺序由视图标高的相对高度来确定。 如果这些图元出现在剖切面下方,将按与剖切面的距离来确定绘图顺序。
示例:在以下协调平面视图中:
所有规程的图元根据视图范围在视图中显示。
机械、电气和管道图元会显示,并根据上述规则覆盖其他图元。
所有规程的剖面视图的标记显示。
