关于族编辑器

族编辑器是一种图形编辑模式,使您能够创建并修改可引入到项目中的族。

当开始创建族时,在编辑器中打开要使用的样板。 该样板可以包括多个视图,如平面视图和立面视图。族编辑器与 Revit 中的项目环境有相同的外观,但提供的工具不同。工具的可用性取决于要编辑的族的类型。

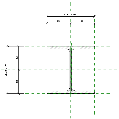
下图显示了族编辑器中的宽法兰列族的平面视图。 绿色的虚线样式的参照平面用于约束族中的几何图形。