在视图中临时查看尺寸标注和对齐限制条件,以解决或修改模型中的图元。 
  
- 在视图控制栏上单击 
(显示约束)。 
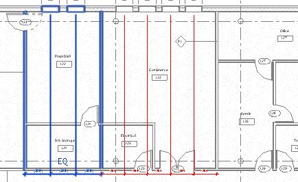
		    “显示约束”绘图区域将显示一个彩色边框,以指示处于“显示约束”模式。 所有限制条件都以彩色显示,而模型图元以半色调(灰色)显示。 
			 注: 若要更容易地查看该模式中的限制条件,请确保“细线”显示选项未被选中(“视图”选项卡

“图形”面板


“细线”)。 
			 
 
 
		   
- 选择限制条件以高亮显示受约束的图元。 
		   在以下示例中,若选择左侧的限制条件,则受约束的 2 个墙和 2 个窗也会高亮显示。 
			 
 
		  
 
- 可选:只需删除或解锁即可移除限制条件。 
		    
			 
注: 在草图模式下为图元添加的限制条件以半色调颜色显示。 双击图元以进入草图模式来修改或移除限制条件。 
			 
 
		   
- 在“视图控制栏”上,单击 
 以退出“显示约束”模式。